Ingatlan Televízió
Ingatlan Televízió
további hirdetések
adatlap bezárása

Iváncsa 
 

Hivatkozási szám: 5914775
Ingatlan adatai
Irányár: 93 500 000 Ft
Típus: lakás (tégla)
Kategória: eladó
Alapterület: 174 m2
Fűtés: gáz (cirko)
Állapota: felújított
Szobák száma: 4
Építés éve: 2002
Szintek száma: 2
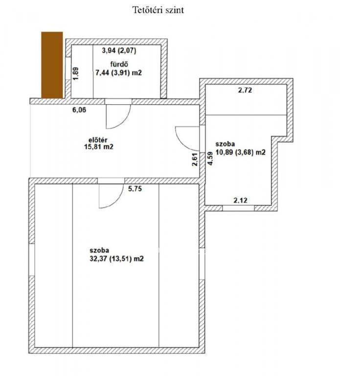
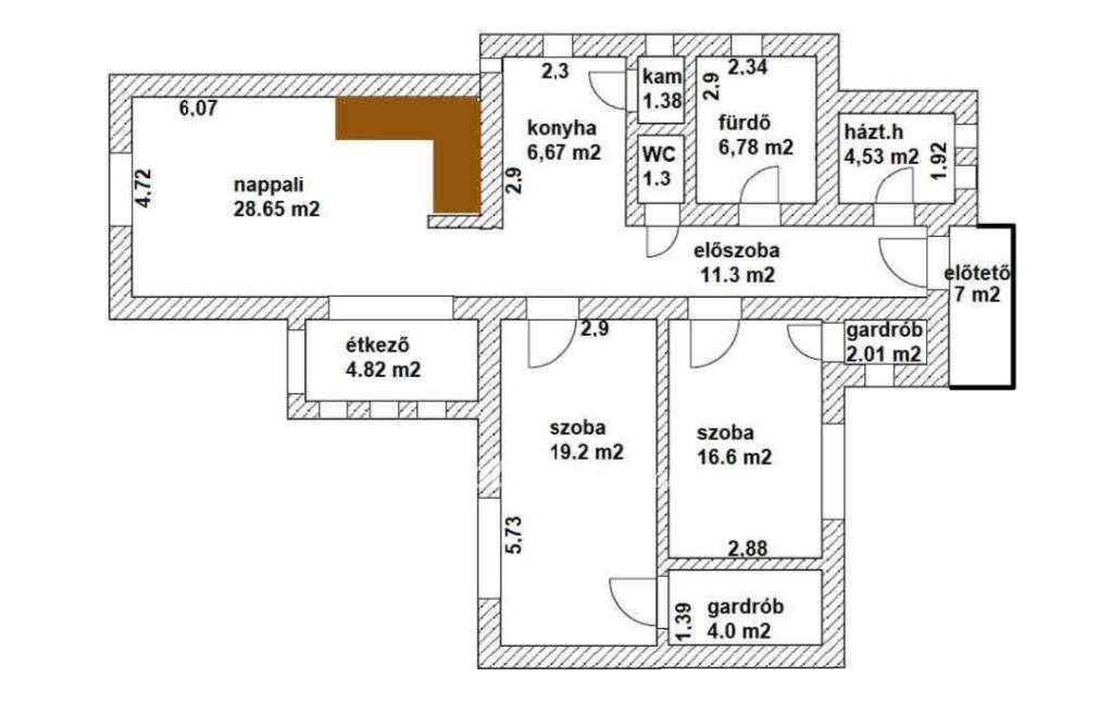
Részletes leírás
Fejér megyében, Iváncsán, eladó egy kiváló adottságú, energiatakarékos családi ház!

173 m?-es, 4 szobás, napelemes családi ház eladó 2106 m?-es, hatalmas telken, jól megközelíthető, frekventált elhelyezkedéssel. Az ingatlan 2007-ben épült, a tetőtér 2012-ben került beépítésre, praktikus és tágas elrendezéssel.

A ház alacsony fenntartási költségű: napelemrendszer, pellet kazán, 2 db hűtő-fűtő klíma és villanybojler gondoskodik az energiatakarékos működésről. A földszinten nappali?étkező, konyha spejzzel, 2 külön nyíló hálószoba saját gardróbbal, fürdőszoba, külön WC és háztartási helyiség található. A tetőtérben további 2 szoba, előtér, tároló és egy második fürdőszoba került kialakításra.

A ház alatt szigetelt garázs, gépészeti helyiség és nagy méretű tároló áll rendelkezésre. Kiváló infrastruktúra: buszmegálló a közelben, vasútállomás 1,5 km-re, óvoda, iskola, orvosi rendelő, posta és boltok pár percen belül elérhetők.

Ideális választás nagyobb családnak vagy nyugodt, energiatudatos otthont keresőknek.
További adatok
Telekterület: 2 106 m2
Kert mérete: -
Erkély mérete: -
Felszereltség: -
Parkolás: lakáshoz van kültéri parkoló
Kilátás: -
Egyéb extrák:  
Hirdető adatai
Hirdető neve: otpip.hu - Gárdony Bóné Kálmán utca 12 - OTP Ingatlanpont Iroda
Kapcsolattartó: Csizmazia Balázs
Hirdető telefonszáma: +36302592699
Honlap: -
 
Üzenetet küldhet a hirdetőnek, árajánlatot tehet az ingatlanra:
Az Ön neve:
Az Ön e-mail címe:
Üzenet: