Ingatlan Televízió
Ingatlan Televízió
további hirdetések
adatlap bezárása

Besnyő 
 

Hivatkozási szám: 5914814
Ingatlan adatai
Irányár: 79 000 000 Ft
Típus: lakás (tégla)
Kategória: eladó
Alapterület: 117 m2
Fűtés: -
Állapota: új
Szobák száma: 3+2
Építés éve: 2025
Szintek száma: 2
Részletes leírás
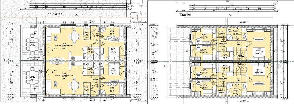
Fejér vármegye, Besnyő településen , 450 nm-es telken, épül meg ez a 117 nm-es, kétszintes ikerház, amely a modern élet minden kényelmét biztosítani fogja leendő tulajdonosának. A kivitelezés során kiemelt figyelmet kap az energiatakarékosság és a fenntarthatóság. Az ingatlan 10 kW-os napelemrendszerrel és léghőszivattyús fűtéssel készül, a hőleadást padlófűtés biztosítja, a melegvízellátást pedig villanybojler.
A 117 nm-es otthon földszintjén egy tágas, 30 nm-es amerikai konyhás nappali kap helyet, amely közvetlen kijárattal rendelkezik majd a fedett teraszra és az oldalkertre. Az előtérből nyílik a külön WC, a 7 nm-es fürdőszoba, valamint a 11 nm-es hálószoba, amely az előkertre néz. A földszintről lépcső vezet fel a tetőtérbe, ahol három hálószoba található - egy nagyobb, 19 nm-es ÉK-i, valamint két 9 nm-es DNY-i tájolású szoba. Itt kap helyet a tetőtéri fürdőszoba, a gépészeti helyiség, a gardrób, valamint egy közlekedő.
Az épület tégla falazattal, nyeregtetős kialakítással és cserép tetőfedéssel készül, alumínium ereszcsatornával és 3 rétegű hőszigetelt nyílászárókkal felszerelve, hogy hosszú távon is időtálló és energiatakarékos otthont nyújtson. A környék nyugodt és biztonságos, a közlekedés kiváló az M6-os autópályának köszönhetően. így ideális választás mind családalapítás előtt állóknak, mind kisgyermekes családoknak. Ügyfeleink részére mind az adásvétel, mind a hitelügyintézésben díjmentes támogatást biztosítunk, piaci hitel esetén pedig egyedi kamatot!

Az energetikai tanúsítvány készítése folyamatban van, amint rendelkezésre áll, úgy azzal a hirdetés frissítésre kerül.
További adatok
Telekterület: 450 m2
Kert mérete: -
Erkély mérete: -
Felszereltség: -
Parkolás: lakáshoz van kültéri parkoló
Kilátás: -
Egyéb extrák:  
Hirdető adatai
Hirdető neve: otpip.hu - Gárdony Bóné Kálmán utca 12 - OTP Ingatlanpont Iroda
Kapcsolattartó: Csizmazia Balázs
Hirdető telefonszáma: +36302592699
Honlap: -
 
Üzenetet küldhet a hirdetőnek, árajánlatot tehet az ingatlanra:
Az Ön neve:
Az Ön e-mail címe:
Üzenet: