Ingatlan Televízió
Ingatlan Televízió
további hirdetések
adatlap bezárása

Nyíregyháza 
 

Hivatkozási szám: 5915318
Ingatlan adatai
Irányár: 112 800 000 Ft
Típus: lakás (tégla)
Kategória: eladó
Alapterület: 98 m2
Fűtés: gáz (konvektor)
Állapota: felújított
Szobák száma: 3
Építés éve: 2017
Szintek száma: 1
Részletes leírás
Eladó tágas, belső udvaros téglalakás Nyíregyháza belvárosának közelében

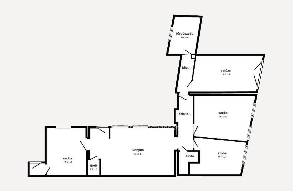
Nyíregyháza egyik keresett részén, a Központi városrészben, a belvárostól mindössze 5 perc sétatávolságra kínálunk megvételre egy 98 nm alapterületű, 3 szobás, kiváló elosztású téglalakást.
Az ingatlan 2017-ben épült, külső homlokzata szigetelt, belső terei rendezettek, folyamatosan karbantartottak. A lakás világos, tágas helyiségekkel rendelkezik, elrendezése praktikus, így kényelmes otthont biztosít akár családok számára is. Azonnal költözhető, nem igényel felújítást.
A lakás egyik legnagyobb előnye a tágas konyha?étkező, amely ideális a mindennapi használatra és a közös étkezésekhez.
A fűtést gázkazán biztosít.
Különleges kényelmi megoldás, hogy a garázsból közvetlen bejárás nyílik a lakásba, ami ritka és rendkívül praktikus megoldás. Az ingatlanhoz egy 180 nm-es saját udvar is tartozik, amely nyugodt, csendes környezetet biztosít pihenéshez vagy családi programokhoz.
A lakóközösség rendezett, kulturált, a szomszédság kifejezetten jó.
A bútorok megegyezés szerint a vételár részét képezhetik, így akár teljes berendezéssel is megvásárolható az ingatlan.
Főbb adatok:
Építés éve: 2017
Alapterület: 98 nm
Szobaszám: 3
Fűtés: gázkazán
Szerkezet: tégla, szigetelt homlokzat
Saját udvar: 180 nm
Garázs: van, közvetlen bejárással a lakásba
Otthon Start Program: igen
Elhelyezkedés:
Belváros: 5 perc sétára
Iskola: 2 perc sétatávolságra
Üzletek, boltok, szolgáltatások a közelben
Kiváló közlekedési lehetőségek, buszmegálló szintén pár perc távolságra van.
Az ingatlan ideális választás családok számára, de befektetésnek is kiváló, elhelyezkedésének köszönhetően könnyen és jól kiadható.
Amennyiben egy tágas, jó elosztású, központi elhelyezkedésű, saját udvarral és garázzsal rendelkező, azonnal költözhető lakást keres Nyíregyházán, ezt az ingatlant érdemes személyesen is megtekinteni.
OTP Banki hátterünknek köszönhetően finanszírozási igényekben (pl. Otthon Start Hitelprogram, Babaváró, Falusi CSOK, CSOK Plusz, Lakáshitel, Személyi kölcsön stb.), illetve biztosítások tekintetében is díjmentesen, soron kívüli ügyintézéssel segítem ügyfeleim! Referenciaszám: M321313

112800000 Ft

Referencia szám: M321313
További adatok
Telekterület: -
Kert mérete: -
Erkély mérete: -
Felszereltség: -
Parkolás: lakáshoz van kültéri parkoló
Kilátás: -
Egyéb extrák:  
Hirdető adatai
Hirdető neve: otpip.hu - Nyíregyháza Bocskai utca 18-20 - OTP Ingatlanpont Iroda
Kapcsolattartó: Szücs-Hajdú Angelika
Hirdető telefonszáma: +36-70-262-4299
Honlap: -
 
Üzenetet küldhet a hirdetőnek, árajánlatot tehet az ingatlanra:
Az Ön neve:
Az Ön e-mail címe:
Üzenet: