Ingatlan Televízió
Ingatlan Televízió
további hirdetések
adatlap bezárása

Győr 
 

Hivatkozási szám: 5916792
Ingatlan adatai
Irányár: 182 500 000 Ft
Típus: ház
Kategória: eladó
Alapterület: 116 m2
Fűtés: gáz (cirko)
Állapota: -
Szobák száma: 4
Építés éve: 2016
Szintek száma: -
Részletes leírás
Győr-Ménfőcsanak – ahol minden adott egy minőségi otthonhoz
Ahogy hajdanán Grétsy tanár úr mondta: „Álljunk meg egy szóra!”
Csendes utca? Kiváló elhelyezkedés? Igényes kivitelezés? Rendezett udvar? Átgondolt belső terek?
A válasz mindenre: igen.
Győr–Ménfőcsanak egyik legszebb, nyugodt utcájában kínálunk megvételre egy egyszintes, kiváló adottságokkal rendelkező családi házat.
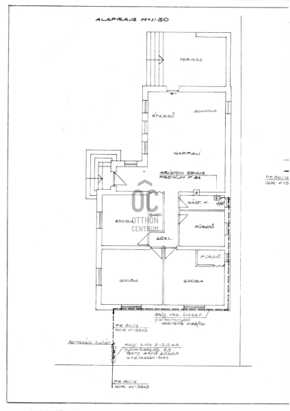
A 116 m²-es lakótér átgondolt elosztású:
három külön nyíló szoba, tágas nappali–konyha–étkező, két fürdőszoba WC-vel, gardrób, háztartási helyiség, valamint kényelmes közlekedők biztosítják a praktikus és élhető mindennapokat.
A nappaliból közvetlen kapcsolat nyílik a 18 m²-es fedett teraszra, amely ideális helyszíne lehet a pihenésnek vagy a családi, baráti összejöveteleknek.
A ház hűtéséről Midea tipusú hűtő-fűtő klíma gondoskodik, a melegről pedig Ariston kombi kazán ( padló és radiátoros hő leadás). Kandalló beépítésre is van lehetőség, mivel a kémény már kiépítésre került.
Az 1045 m²-es, sík fekvésű, parkosított telek rendezett és gondozott. Az udvaron egy dupla, szerelőaknás garázs található, amely akár vállalkozási célra is kiváló lehetőséget biztosít, továbbá egy kerti tároló is helyet kapott.
A nyári időszak kényelméről süllyesztett medence gondoskodik, a kert pedig valódi privát életteret biztosít tulajdonosának. A kert folyamatos fríssességéről Hunter automata öntözőrendszer gondoskodik. Az utcafronti alumínium kerítés pedig Hörmann automatikával van ellátva.
A ház tehermentes, rövid időn belül költözhető!
Ez az ingatlan ideális választás mindazok számára, akik csendes környezetben, mégis kiváló infrastruktúrával rendelkező városrészben keresnek igényes, azonnal élhető otthont.

Hitelre van szüksége?
Az Otthon Centrum, az ország egyik legnagyobb és legmegbízhatóbb hitelközvetítője, teljes körű és díjmentes hitelügyintézéssel, valamint biztosításkötéssel áll rendelkezésére.
Kérje kollégáinktól személyre szabott ajánlatát, és találja meg a legjobb megoldást gyorsan és egyszerűen.
További adatok
Telekterület: 1 045 m2
Kert mérete: 1 045 m2
Erkély mérete: 18 m2
Felszereltség: -
Parkolás: -
Kilátás: -
Egyéb extrák:  
Hirdető adatai
Hirdető neve: Otthon Centrum
Kapcsolattartó: Páter József
Hirdető telefonszáma: +36 70 412 3131
Honlap: -
 
Üzenetet küldhet a hirdetőnek, árajánlatot tehet az ingatlanra:
Az Ön neve:
Az Ön e-mail címe:
Üzenet: