Ingatlan Televízió
Ingatlan Televízió
további hirdetések
adatlap bezárása

Buják 
 

Hivatkozási szám: 5916829
Ingatlan adatai
Irányár: 29 990 000 Ft
Típus: ház
Kategória: eladó
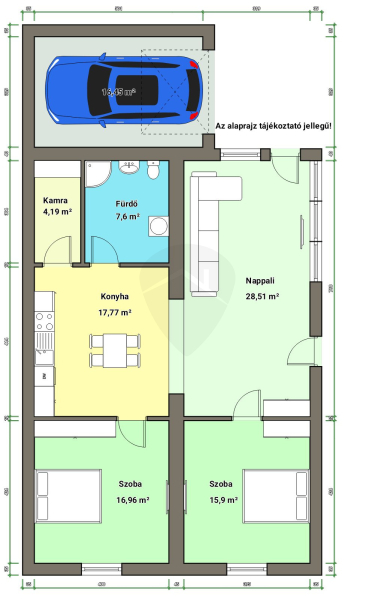
Alapterület: 94 m2
Fűtés: gáz (cirko)
Állapota: -
Szobák száma: 3
Építés éve: 1950
Szintek száma: -
Részletes leírás
Keresed az ideális otthont a családod számára? Akkor ne hagyd ki ezt a remek lehetőséget!

Eladó egy modern, FRISSEN FELÚJÍTOTT lakóingatlan Nógrád megyében, Buják település kedvelt részén. Az ingatlan központi elhelyezkedésének köszönhetően könnyen megközelíthető autóval és tömegközlekedéssel is. Az ingatlan állapota kiváló, tehermentes, tágas terek jellemzik, praktikus elosztás mellett. Az ingatlan alapterülete 94 nm, vegyes falazatból épült (vályog+tégla), a telek mérete pedig 896 nm. A parkolásról egy GARÁZS gondoskodik, illetve a kert végén egy boros pince is található.

A felújítás alkalmával a következők lettek cserélve:
- Új TETŐSZERKEZET + cserepes lemezfedés
- Külső 10 cm-es hőszigetelés
- Új műanyag bejárati ajtó + nyílászárok, redőnyökkel
- Új víz-, villany-, gáz-, és csatornarendszer került kialakításra
- Új kondenzációs gázkazán lapradiátorokkal
- Gipszkarton állmennyezet + födém szigetelés
- Új fürdőszoba, konyha, nappali, szobák, minőségi burkolatokkal kialakítva
- Új fa mintás lemezzel borított utcafronti kerítés

A környék CSENDES és NYUGODT, ideális családoknak és nyugdíjasoknak is.

Amennyiben olyan házat kerestek, ahol csak a költözéssel kell foglalkozni, akkor Ne habozz, és légy Te az első, aki megnézi ezt a fantasztikus otthont! További információért keress bizalommal!
További adatok
Telekterület: 896 m2
Kert mérete: 896 m2
Erkély mérete: -
Felszereltség: -
Parkolás: -
Kilátás: utcai
Egyéb extrák:  
Hirdető adatai
Hirdető neve: Ingatlanmentor powered by Rock Home
Kapcsolattartó: Horváth Tibor
Hirdető telefonszáma: +36 70 467 6871
Honlap: -
 
Üzenetet küldhet a hirdetőnek, árajánlatot tehet az ingatlanra:
Az Ön neve:
Az Ön e-mail címe:
Üzenet: