Ingatlan Televízió
Ingatlan Televízió
további hirdetések
adatlap bezárása

Berettyóújfalu 
 

Hivatkozási szám: 5917724
Ingatlan adatai
Irányár: 24 900 000 Ft
Típus: ház
Kategória: eladó
Alapterület: 60 m2
Fűtés: gáz (konvektor)
Állapota: felújított
Szobák száma: 2
Építés éve: 1965
Szintek száma: 1
Részletes leírás
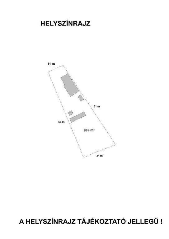
Eladó egy 60 m2-es családi ház, 999 m2-es sarki telken, kiváló környéken Berettyóújfaluban!

A város egyik legjobb és legbiztonságosabb, aszfaltozott utcájában kínálunk megvételre egy 60 m2-es, jó elrendezésű családi házat, 999 m2-es, összközműves sarki telken.

Az ingatlan praktikus kialakítású:
- 23 m2- es tágas szoba, ami ketté osztható igény szerint
- 16 m2-es második szoba, ahol egy nappali+étkező is kialakítható
- 9 m2-es konyha és fürdőszoba
- 2 előszoba
- WC

A ház vályog falazatú, otthonos hangulatú. Fűtéséről gázkonvektorok és cserépkályhák gondoskodnak, a melegvizet villanybojler biztosítja.

A telken található továbbá:
- 6 m2-es melléképület
- 5 m2-es pince
- 9 m2-es különálló épület
- 19 m2-es fedett terület, több kisebb tároló résszel

A közel 1000 m2-es, sarok elhelyezkedésű telek kiváló lehetőséget biztosít bővítésre, kertészkedésre vagy akár további építkezésre is.

Az ingatlan elhelyezkedése, mérete és adottságai miatt ideális választás lehet első otthonnak, idősebbeknek, illetve befektetési célra egyaránt.

Csendes, rendezett környezet, biztos érték, jó döntés.

A hirdetésben tervezett látványképek is meg vannak jelenítve, hogy segítsenek a végleges megjelenés pontosabb elképzelésében! További információért hívjon bizalommal akár hétvégén is. Megtekintésre telefonos egyeztetés alapján van lehetőség. Kedvezményes kamatozású lakásvásárlási, felújítási hitelek, OTTHON START valamint CSOK és Babaváró ügyintézés az OTP hátterével irodánkban.
További adatok
Telekterület: 999 m2
Kert mérete: -
Erkély mérete: -
Felszereltség: -
Parkolás: -
Kilátás: -
Egyéb extrák:  
Hirdető adatai
Hirdető neve: otpip.hu - Debrecen Kürtös utca 8 - OTP Ingatlanpont Iroda
Kapcsolattartó: Mester Tibor
Hirdető telefonszáma: +36-20-806-7007
Honlap: -
 
Üzenetet küldhet a hirdetőnek, árajánlatot tehet az ingatlanra:
Az Ön neve:
Az Ön e-mail címe:
Üzenet: