Ingatlan Televízió
Ingatlan Televízió
további hirdetések
adatlap bezárása

Tiszaeszlár 
 

Hivatkozási szám: 5917811
Ingatlan adatai
Irányár: 33 500 000 Ft
Típus: ház
Kategória: eladó
Alapterület: 159 m2
Fűtés: elektromos
Állapota: felújított
Szobák száma: 4
Építés éve: 1980
Szintek száma: 2
Részletes leírás
Házat venne Tiszaeszlár nyugodt, csendes környékén?
Akkor ez az kiváló lehetőség!
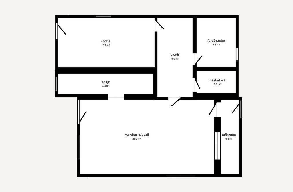
Eladó 867 nm-es telken egy kétszintes, 159 nm hasznos alapterületű, vegyes falazatú, cserép tetővel ellátott családi házat Tiszaeszlár csendes, nyugodt részén. Az ingatlan alsó szintjén szoba, fürdőszoba, előtér, spájz, konyha nappalival és előszoba került kialakításra, míg az emeleten három szoba, külön wc, tároló, előtér és erkély található. Az emeleti szobák és a közlekedő padlószőnyeggel, a további helyiségek járólappal burkoltak. A fűtésről kandalló, gázfűtés és klíma gondoskodik, így több alternatíva is rendelkezésre áll a komfortos hőérzet biztosítására. A házhoz kisebb méretű, rendezett telek tartozik néhány gyümölcsfával és egy melléképülettel, amely kiválóan alkalmas tárolásra, de igény szerint műhellyé vagy garázzsá is alakítható. A közelben megtalálható óvoda, iskola és gyógyszertár, így a mindennapi élethez szükséges intézmények könnyen elérhetők. Az ingatlan bútorozottan is eladó, amely megegyezés tárgyát képezi, és akár 60 napon belül birtokba vehető.

OTP Banki hátterünknek köszönhetően finanszírozási igényekben (pl. Otthon Start Hitelprogram, Babaváró, Falusi CSOK, CSOK Plusz, Lakáshitel, Személyi kölcsön stb.), illetve biztosítások tekintetében is díjmentesen, soron kívüli ügyintézéssel segítem ügyfeleim! Referenciaszám:M323038
https://my.matterport.com/show/?m=ndVRDuJVKUr&mls=1
További adatok
Telekterület: 867 m2
Kert mérete: -
Erkély mérete: 5 m2
Felszereltség: -
Parkolás: -
Kilátás: -
Egyéb extrák:  
Hirdető adatai
Hirdető neve: otpip.hu - Nyíregyháza Bocskai utca 18-20 - OTP Ingatlanpont Iroda
Kapcsolattartó: Harsányi Nikolett
Hirdető telefonszáma: +36307220822
Honlap: -
 
Üzenetet küldhet a hirdetőnek, árajánlatot tehet az ingatlanra:
Az Ön neve:
Az Ön e-mail címe:
Üzenet: