Ingatlan Televízió
Ingatlan Televízió
további hirdetések
adatlap bezárása

Pécs 
 

Hivatkozási szám: 5918109
Ingatlan adatai
Irányár: 58 700 000 Ft
Típus: lakás (tégla)
Kategória: eladó
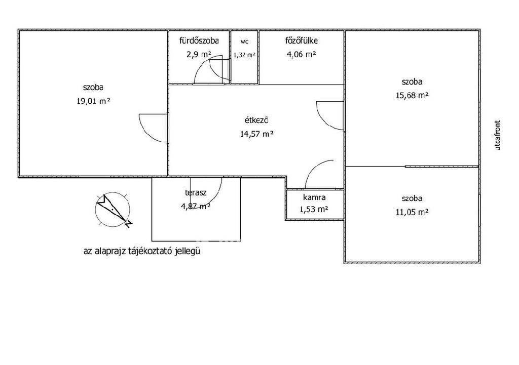
Alapterület: 70 m2
Fűtés: gáz (cirko)
Állapota: felújított
Szobák száma: 2+1
Építés éve: 1960
Szintek száma: 1
Részletes leírás
LEHETŐSÉG A ZSOLNAY NEGYEDNÉL! ? Saját kert + Garázs!

Eladó egy átlagos állapotú, szerkezetileg stabil, jó adottságokkal rendelkező családi ház Pécsett, a Kiss Ernő utcában (Zsolnay-domb)!

? 70 m? lakótér: 2,5 szoba, konyha, étkező, spájz.
? Dupla fűtés: Gázkazán + vegyestüzelésű kazán (rugalmas rezsi!).
? 480 m?-es kert: Pont akkora, amit még élvezet gondozni.
? 21 m?-es garázs: A kert végében, külön helyrajzi számmal, és villanyórával (benne van az árban!).
? Melléképületek: Tároló és kazánház az udvarban.
jelenleg főzőfülke van a házban. Kisebb átalakítással a kamra mellé lehet telepíteni konyhát.
Az udvar két részre van bontva pl. kutyatartás miatt lehet érdekes. Az első udvarban kisebb pince található.

Buszmegálló: 1 perc gyalog!
Zsolnay negyed: 3 perc séta!

Ideális választás családoknak vagy befektetésnek a kulturális negyed közelsége miatt. Alakítsad saját ízlésedre és varázsolj belőle modern otthont! A ház 1970. előtt épült.

Referenciaszám: M324682

58700000 Ft

Referencia szám: M324682
További adatok
Telekterület: 480 m2
Kert mérete: -
Erkély mérete: -
Felszereltség: -
Parkolás: garázs
Kilátás: -
Egyéb extrák:  
Hirdető adatai
Hirdető neve: otpip.hu - Pécs Király utca 75 - OTP Ingatlanpont Iroda
Kapcsolattartó: Vincze László György
Hirdető telefonszáma: +36209384141
Honlap: -
 
Üzenetet küldhet a hirdetőnek, árajánlatot tehet az ingatlanra:
Az Ön neve:
Az Ön e-mail címe:
Üzenet: