Ingatlan Televízió
Ingatlan Televízió
további hirdetések
adatlap bezárása

Cserszegtomaj 
 

Hivatkozási szám: 5918656
Ingatlan adatai
Irányár: 155 000 000 Ft
Típus: ház
Kategória: eladó
Alapterület: 220 m2
Fűtés: egyéb
Állapota: -
Szobák száma: 4
Építés éve: 1989
Szintek száma: -
Részletes leírás
Cserszegtomaj csendes, nyugodt részén, egy zsákutcában kínálok megvételre egy igazán különleges, impozáns megjelenésű, örökpanorámás családi házat, mely egy karnyújtásnyira vana Balatontól, gyönyörű erdő ölelésében.

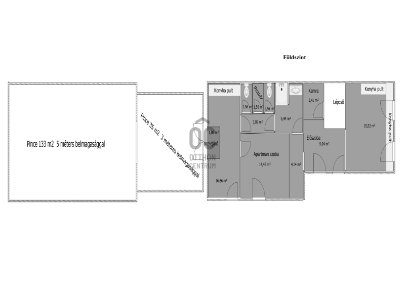
Az ingatlan egyik legnagyobb értéke a föld alatt található, hatalmas borospince, amely nemcsak különleges hangulatot áraszt, hanem komoly lehetőségeket is rejt magában. Az előző tulajdonosok borászatot üzemeltettek itt, így a pince akár hasonló célra, akár exkluzív hobbitérként, tárolóként vagy vendégfogadásra is kiválóan hasznosítható.

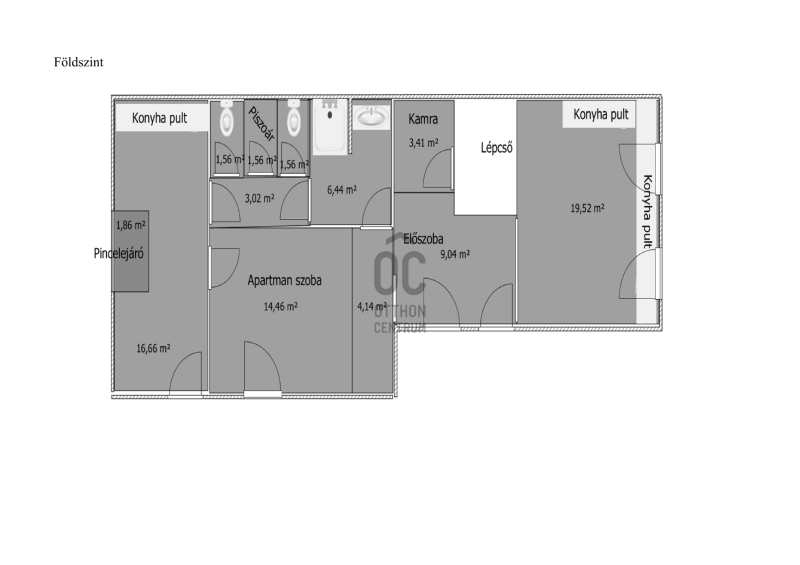
A ház belső kialakítása tágas és élhető tereket kínál:
- 4 kényelmes szoba,
- egy tágas étkező,
- 2 fürdőszoba és több mellékhelység
- valamint egy full panorámás nappali szolgálja a mindennapi kényelmet.

A ház fűtése pellet kazánnal van megoldva. Vegyestüzelésű illetve gázkazán is van, tartályos gáz telepíthető, a meleg víz ellátás elektromos.

BWT aqa perla víz lágyító van beszerelve.
Áramellátás: 3*16 Amper

Az ingatlan duplakomfortos, emellett külön vendégrészleggel is rendelkezik, így nagyobb családoknak, többgenerációs együttélésre vagy vendégek fogadására is ideális választás.

A pihenést tavasztól egészen őszig egy kellemes, árnyékos terasz teszi teljessé, ahol a csend, a nyugalom és a gyönyörű környezet garantált.

A kivételes adottságú kert akár medence kiépítésére is alkalmas, így fürdőzés közben csodálhatja a panorámás tájat.
Az udvaron akár 4 autó is kényelmesen parkolhat, fedett garázs is található.

Ez az ingatlan tökéletes választás mindazok számára, akik nyugodt, exkluzív környezetben keresnek tágas otthont, különleges extrákkal és páratlan panorámával.

Az alaprajz és a négyzetméter adatok tájékoztató jellegűek, a tulajdonostól származnak.
További adatok
Telekterület: 1 670 m2
Kert mérete: 1 670 m2
Erkély mérete: 38 m2
Felszereltség: -
Parkolás: -
Kilátás: -
Egyéb extrák:  
Hirdető adatai
Hirdető neve: Otthon Centrum
Kapcsolattartó: Böde Vanessza
Hirdető telefonszáma: +36 70 716 9796
Honlap: -
 
Üzenetet küldhet a hirdetőnek, árajánlatot tehet az ingatlanra:
Az Ön neve:
Az Ön e-mail címe:
Üzenet: