Ingatlan Televízió
Ingatlan Televízió
további hirdetések
adatlap bezárása

Debrecen 
 

Hivatkozási szám: 5918704
Ingatlan adatai
Irányár: 119 000 000 Ft
Típus: ház
Kategória: eladó
Alapterület: 159 m2
Fűtés: gáz (cirko)
Állapota: -
Szobák száma: 6
Építés éve: 2006
Szintek száma: -
Részletes leírás
Debrecen közkedvelt, családbarát városrészében, a Biharikertben eladó egy 159 m²-es, gázfűtéses, klimatizált ikerház, 320 m²-es saroktelken.
Bár az ingatlan ikerházként szerepel, kialakításának köszönhetően szinte teljesen különálló épület, mindössze egy fal érintkezik a szomszédos ingatlannal,
így az otthon nyugodt, privát életteret biztosít.
Különlegessége, hogy 3 lakrészből áll, amelyek külön bejárattal is rendelkeznek, ugyanakkor igény szerint teljesen egyben is használhatók,
így rugalmasan alakítható az új tulajdonos elképzelései szerint.

Ideális választás:
- több generáció együttélésére
- befektetésre vagy kiadásra
- szépségszalon, iroda vagy otthoni vállalkozás kialakítására.

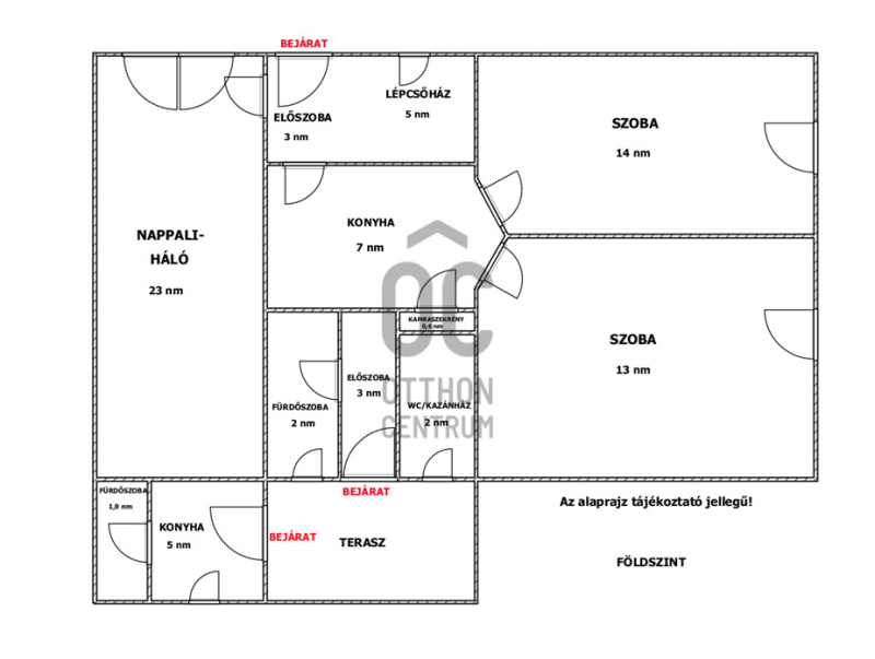
Az ingatlan elrendezése:

Alsó szint – 2 lakrész:

1. lakrész – 30 m²
- világos nappali hatalmas ablakokkal
- galériás hálórész
- konyha
- zuhanyzós fürdőszoba WC-vel

2. lakrész – 49,5 m²
- előszoba
- konyha
- 2 szoba
- zuhanyzós fürdőszoba
- WC / kazánház
- közlekedő

Emeleti lakrész:
– 79,5 m²
- 2 szoba
- nappali–étkező
- konyha
- zuhanyzós fürdőszoba
- külön WC
- közlekedő

Felújítások – 2021
Az ingatlan több korszerűsítésen esett át:
- alsó és felső szinten 1-1 klíma került beszerelésre
- műanyag bejárati ajtók
- 10 cm-es szigetelés
- három fürdőszoba új burkolatot kapott
- Immergas gázkazán
- fedett terasz polikarbonát borítással

További előnyök
- 320 m²-es saroktelek
- 3 külön bejáratú lakrész
- rugalmasan alakítható elrendezés
- tehermentes ingatlan

Megtekintéssel kapcsolatban hívjon bizalommal a hét bármely napján!
További adatok
Telekterület: 320 m2
Kert mérete: 320 m2
Erkély mérete: 6 m2
Felszereltség: -
Parkolás: -
Kilátás: -
Egyéb extrák:  
Hirdető adatai
Hirdető neve: Otthon Centrum
Kapcsolattartó: Varga Ágnes
Hirdető telefonszáma: +36 70 469 3906
Honlap: -
 
Üzenetet küldhet a hirdetőnek, árajánlatot tehet az ingatlanra:
Az Ön neve:
Az Ön e-mail címe:
Üzenet: