Ingatlan Televízió
Ingatlan Televízió
további hirdetések
adatlap bezárása

Hajdúsámson 
 

Hivatkozási szám: 5918806
Ingatlan adatai
Irányár: 71 900 000 Ft
Típus: ház
Kategória: eladó
Alapterület: 108 m2
Fűtés: -
Állapota: új
Szobák száma: 4
Építés éve: 2026
Szintek száma: -
Részletes leírás
FIGYELEM! ÚJ ÉPÍTÉSŰ, DÉLI FEKVÉSŰ IKERHÁZ ELADÓ – GARÁZZSAL, SAJÁT TELEKKEL, KIEMELKEDŐ ÁRON!

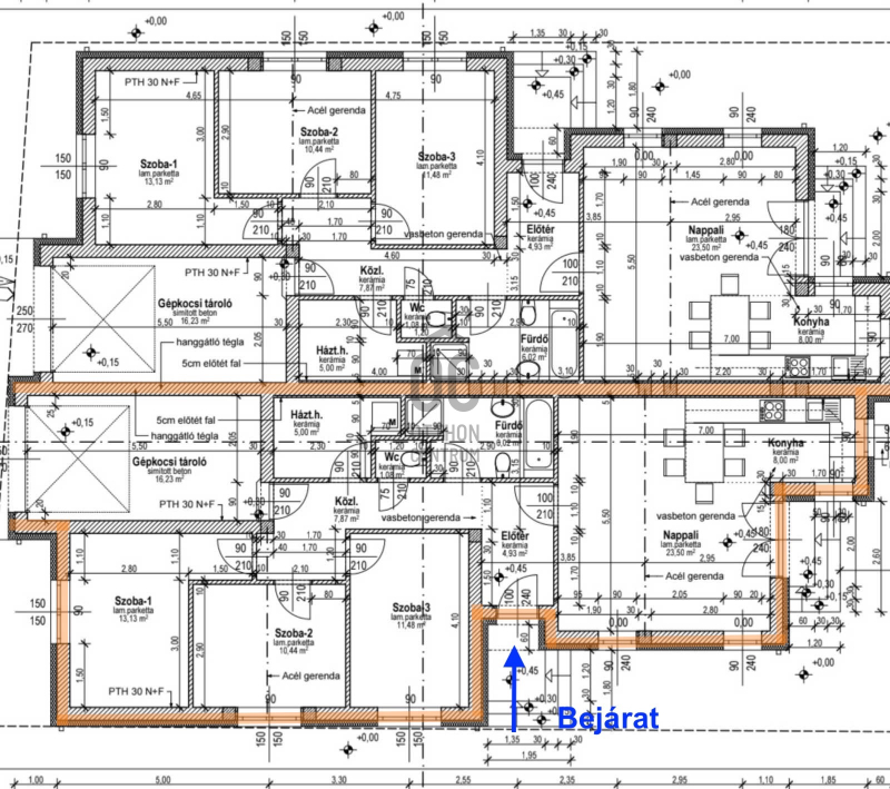
Debrecen vonzáskörzetében, Hajdúsámson - Sámsonkert fejlődő részén, 108 m²-es, egyszintes ikerház, 457 m² saját telekrésszel eladó. Az ikerház déli fekvésű, így a lakótér egész nap világos és kellemesen benapozott. A két lakás közül már csak a jobb oldali lakás érhető el!
Kulcsrakész, modern otthon garázzsal, 59 millió Ft. – a négyzetméterár mindössze 546.000 Ft,
A 24 méteres utcafronttal rendelkező telekrész külön is kiemelkedő értékű, mindössze 12,9 millió Ft.
A vételár 71.9 millió Ft ( ház+telek)

Helyiségek
-Előszoba
-3 külön nyíló szoba
-Tágas, 38 m²-es nappali – étkező – konyha egy légtérben
-Fürdőszoba sarokkáddal, zuhannyal és WC-vel
-Külön WC
-Háztartási helyiség / mosókonyha
-Nappaliból nyíló terasz
-Garázs

Műszaki tartalom
-Porotherm 30 NF tégla falazat
-15 cm külső hőszigetelés
-30 cm födémszigetelés
-12 cm aljzatszigetelés
-5 légkamrás, 3 rétegű műanyag nyílászárók
-Hőszivattyús fűtési rendszer padlófűtéssel

Az ár tartalmazza a hátsó és oldalsó kerítést, valamint 1 db klímaberendezést.

Átadás
Az ingatlan kulcsrakész állapotban, legkésőbb 2026.12.30-ig elkészül.
Debrecenben egy 70 m²-es panel lakás ára gyakran eléri ezt az összeget – garázs és saját telek nélkül.

Finanszírozás
Az ingatlanra banki hitel és CSOK is igényelhető.
Ne maradjon le róla – már csak az egyik ikerház elérhető!

További információért, alaprajzokért vagy megtekintésért hívjon bizalommal!
További adatok
Telekterület: 457 m2
Kert mérete: 457 m2
Erkély mérete: 10 m2
Felszereltség: -
Parkolás: -
Kilátás: -
Egyéb extrák:  
Hirdető adatai
Hirdető neve: Otthon Centrum
Kapcsolattartó: Szaszala Zsolt
Hirdető telefonszáma: +36 70 469 3681
Honlap: -
 
Üzenetet küldhet a hirdetőnek, árajánlatot tehet az ingatlanra:
Az Ön neve:
Az Ön e-mail címe:
Üzenet: