Ingatlan Televízió
Ingatlan Televízió
további hirdetések
adatlap bezárása

Miskolc 
Széchenyi István út 

Hivatkozási szám: 5919369
Ingatlan adatai
Irányár: 67 990 000 Ft
Típus: lakás (tégla)
Kategória: eladó
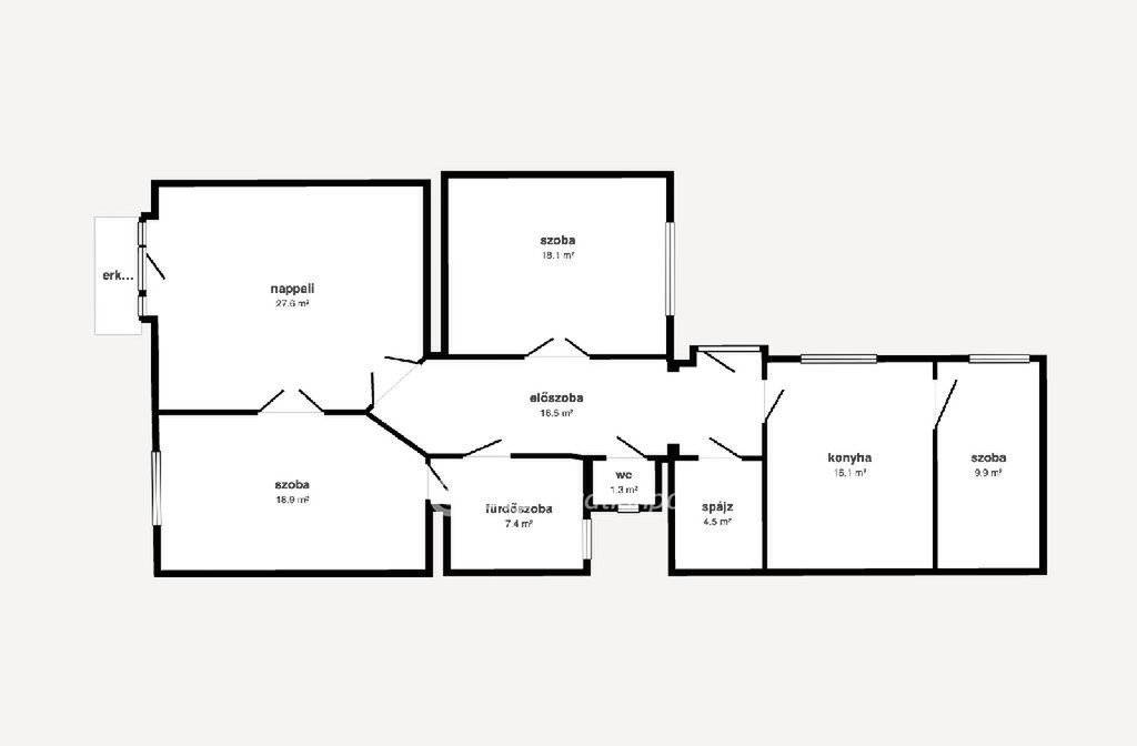
Alapterület: 115 m2
Fűtés: gáz (cirko)
Állapota: felújított
Szobák száma: 3+1
Építés éve: 1910
Szintek száma: 1
Részletes leírás
Miskolc szívében, a Széchenyi utcán kínálunk megvételre egy 115 nm-es, 3+1 félszobás, polgári jellegű lakást, amely a társasház harmadik emeletén helyezkedik el, és belvárosi panorámával ajándékozza meg leendő tulajdonosát.

Ez az ingatlan igazi ritkaság a belvárosban: tágas terei, nagy belmagassága és klasszikus polgári hangulata különleges atmoszférát teremtenek. A lakás elrendezése kiváló ? három nagyméretű szoba és egy félszoba biztosít kényelmes életteret akár család számára, akár irodai, rendelői vagy reprezentatív célokra is. A helyiségek között külön konyha és praktikus spájz található, a fürdőszoba és a WC külön helyiségben kapott helyet, ami a mindennapok során kifejezetten előnyös.

Az ingatlan átlagos állapotú, igény szerint felújítandó, így új tulajdonosa saját elképzelései szerint formálhatja tovább. A fűtést egy 24 kW-os BAXI kondenzációs kazán biztosítja, ami gazdaságos működést tesz lehetővé. A közművek egyediek, a villamos hálózat 1x20 amperes, víz- és villamos rendszer igény esetén korszerűsíthető. A lakásban kétrétegű fa nyílászárók találhatók, amelyek illeszkednek a polgári stílushoz.

A társasház körgangos kialakítású, lifttel felszerelt, lakóközössége kulturált, értelmiségi. Bár a város központjában található, elhelyezkedésének köszönhetően nem zajos, így a belvárosi élet minden előnyét élvezheti anélkül, hogy a nyugalomról le kellene mondania. A lakáshoz saját pincehelyiség is tartozik, ami további praktikus tárolási lehetőséget kínál.

Ez az ingatlan nem csupán egy lakás, hanem egy lehetőség: egy karakteres, nagy terekkel rendelkező polgári otthon a város egyik legfrekventáltabb pontján, amelyből egy kis fantáziával és ízléssel igazán exkluzív élettér alakítható ki.

Ha Ön is értékeli a belvárosi hangulatot, a klasszikus építészeti jegyeket és a tágas tereket, érdemes személyesen is megtekintenie ezt a különleges lehetőséget.

Elhelyezkedéséből adódóan iskola, óvoda, posta, bolt, templom, és egyéb szolgáltatók 5-10 percen belül elérhetők. Az ingatlan per és tehermentes. OTP Banki hátterünknek köszönhetően finanszírozási igényekben (pl. Otthon Start Hitelprogram, Babaváró, Falusi CSOK, CSOK Plusz, Lakáshitel, Személyi kölcsön stb.), illetve biztosítások tekintetében is díjmentesen, soron kívüli ügyintézéssel segítem ügyfeleim! Érdeklődés esetén kérem hivatkozzon az M322538-as referenciaszámra.
További adatok
Telekterület: -
Kert mérete: -
Erkély mérete: -
Felszereltség: -
Parkolás: -
Kilátás: -
Egyéb extrák:  
Hirdető adatai
Hirdető neve: otpip.hu - Miskolc Szemere Bertalan utca 20 - OTP Ingatlanpont Iroda
Kapcsolattartó: Drótos Bence
Hirdető telefonszáma: +36-30-590-4195
Honlap: -
 
Üzenetet küldhet a hirdetőnek, árajánlatot tehet az ingatlanra:
Az Ön neve:
Az Ön e-mail címe:
Üzenet: