Ingatlan Televízió
Ingatlan Televízió
további hirdetések
adatlap bezárása

Budapest, III.kerület 
Bécsi út 

Hivatkozási szám: 5919893
Ingatlan adatai
Irányár: 349 000 000 Ft
Típus: lakás (tégla)
Kategória: eladó
Alapterület: 236 m2
Fűtés: gáz
Állapota: felújított
Szobák száma: 5
Építés éve: 1995
Szintek száma: 1
Részletes leírás
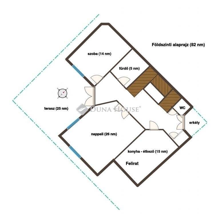
Eladó panorámás ikerházfél Budapest III. kerületében, a Bécsi út csendes részén 236 m² lakótér, 1000 m² telekKivételes adottságokkal rendelkező, háromszintes, folyamatosan karbantartott családi ház egyik ikerházfele eladó Óbudán, a Bécsi út nyugodt, zöldövezeti szakaszán. A ház 1995-ben épült, azóta folyamatos felújításokon és karbantartáson esett át, műszaki állapota jó, rövid határidővel költözhető.Főbb jellemzők: 236 m² lakóterület, 3 szinten panorámás kilátás, csendes környezet duplakomfortos kialakítás gázkazán fűtés + 4 szobában légkondicionáló új műanyag nyílászárók öntözőrendszer a kertben kamerarendszer kertkapcsolatos nappali 25 m²-es nyitott terasz szaletlivel telken belül különálló, kb. 25 m²-es tároló/műhely 2-3 autó számára parkolási lehetőség az előkertbenHelyiségek elosztása:Pinceszint kb. 80 m² 38 m² műhely / hobbihelyiség 10 m² kazánszoba WC 17 m² raktárFöldszint kb. 82 m² 15 m² étkezőkonyha (K) 26 m² nappali (D-NY), kertkapcsolattal fürdőszoba külön WC 14 m² hálószoba (D) 3 m² erkélyEmelet kb. 78 m² 13 m² szoba 17 m² szoba (D-K) 14 m² szoba (D) 5 m² gardrób 6 m² fürdő + WCTelek és környezet: A kb. 1000 m²-es, parkosított kert intim, jól használható, öntözőrendszerrel ellátott. A panoráma és a zöld környezet különleges hangulatot ad az ingatlannak, miközben a város könnyen elérhető. A teraszon kialakított szaletli ideális családi és baráti összejövetelekhez.Egy ritka adottságú, nagy telekkel rendelkező, jól élhető ikerházfél a III. kerület egyik kedvelt, csendes részén stabil műszaki háttérrel, sok lehetőséggel.
További adatok
Telekterület: 1 021 m2
Kert mérete: -
Erkély mérete: 25 m2
Felszereltség: -
Parkolás: -
Kilátás: -
Egyéb extrák:  
Hirdető adatai
Hirdető neve: dh.hu - Budapest - Főnix
Kapcsolattartó: Bártfai-Ádám Júlia
Hirdető telefonszáma: +36704572959
Honlap: -
 
Üzenetet küldhet a hirdetőnek, árajánlatot tehet az ingatlanra:
Az Ön neve:
Az Ön e-mail címe:
Üzenet: