Ingatlan Televízió
Ingatlan Televízió
további hirdetések
adatlap bezárása

Debrecen 
 

Hivatkozási szám: 5919920
Ingatlan adatai
Irányár: 95 900 000 Ft
Típus: lakás (tégla)
Kategória: eladó
Alapterület: 73 m2
Fűtés: gáz (cirko)
Állapota: új
Szobák száma: 3
Építés éve: 2026
Szintek száma: 1
Részletes leírás
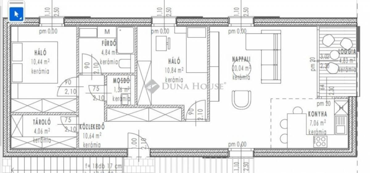
Eladásra kínálunk egy különleges, új építésű nappali + kettő szobás lakást Debrecen felkapott városrészében, a Kartács utcából nyíló csendes utcában, Nyulason. A lakás alapterülete 73,58 nm. A lakáshoz tartozik 4,58 nm es loggia. Az ingatlan vételára 95 900 000 HUF, ami négyzetméterenként 1 498 548 HUF-t jelent. Fizetési ütemezés rugalmas, az első részletként csak 5% befizetése szükséges.Egy kis lakószámú társasházban található, ahol a modern technológiák és a kényelem ötvöződnek.Ami igazán különlegessé teszi ezt a projektet, hogy nincs közös fal a lakások között, így az otthon érzése olyan, mintha családi házban élnél, miközben élvezheted a társasházi kényelmi előnyöket. A zöld, nyugodt környezet és a közelben lévő minden szükséges infrastruktúra ideális választássá teszi ezt a lakást modern műszaki megoldásokat keresőknek, akik nem szeretnének kompromisszumot kötni az otthonuk minőségét illetően.A lakásokhoz saját, lakáson belüli tároló vagy gardrób tartozik, ami extra tárolási lehetőséget biztosít. A 36 cm vastag Isospan falazati rendszer (16 cm grafitos szigeteléssel és vasbetonnal) egyenletes hőmérsékletet garantál fűtés és hűtés nélkül is, a prémium hő- és hangszigetelés mellett. A tűzállóság érdekében a lakás beton sávalappal és monolit vasbeton födémmel került kialakításra, a külső nyílászárók pedig 3 réteg üvegezésű, 6 légkamrás műanyag profilban készültek.Az ingatlan főbb jellemzői között szerepel az A+ energetikai besorolás, ami alacsony rezsi költséget és korszerű műszaki megoldásokat ígér. Minden lakás gáz cirkó kazánnal és padlófűtéssel van ellátva a kellemes hőérzetért. Emellett klíma biztosítja a nyári komfortot minden szobában.Az épület a tervek szerint 2026 IV negyedévében kerül átadásra. A lakás kimagasló fényviszonyokkal rendelkezik, köszönhetően a napfényes elhelyezkedésének.Bővebb felvilágosításért forduljon hozzám bizalommal akár hétvégén is.www.dh.hu

Referencia szám: LK025869
További adatok
Telekterület: -
Kert mérete: -
Erkély mérete: 5 m2
Felszereltség: -
Parkolás: -
Kilátás: -
Egyéb extrák:  
Hirdető adatai
Hirdető neve: dh.hu - Debrecen, Derék utca
Kapcsolattartó: Lovász Lajos László
Hirdető telefonszáma: +36302182905
Honlap: -
 
Üzenetet küldhet a hirdetőnek, árajánlatot tehet az ingatlanra:
Az Ön neve:
Az Ön e-mail címe:
Üzenet: