Ingatlan Televízió
Ingatlan Televízió
további hirdetések
adatlap bezárása

Debrecen 
 

Hivatkozási szám: 5919927
Ingatlan adatai
Irányár: 62 387 500 Ft
Típus: lakás (tégla)
Kategória: eladó
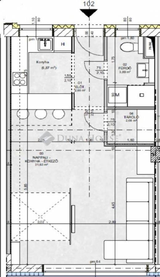
Alapterület: 40 m2
Fűtés: házközponti egyedi méréssel
Állapota: új
Szobák száma: 1
Építés éve: 2027
Szintek száma: 1
Részletes leírás
Debrecen belvárosában egy 16 lakásos újépítésű projekt építése vette kezdetét.Különösen jó lokációval, remek elosztású lakások kerülnek megépítésre. Pinceszinten terempakolók, földszinten irodák, üzletek, míg az első és második emeleten 7-7 lakás, addig a 2.-ik emeleten kettő penthouse kerül kialakításra.Műszaki tartalom:- 30-as téglafalazat- 15 cm hőszigetelés- 3 rétegű nyílászárók- elektromos redőnnyel- Hűtés: fain-cool- választható burkolatok...stb.Teremgarázs vásárolható 10 Mft-értTovábbi kérdéseivel kapcsolatban várom hívását, érdeklődését....
További adatok
Telekterület: -
Kert mérete: -
Erkély mérete: -
Felszereltség: -
Parkolás: -
Kilátás: -
Egyéb extrák:  
Hirdető adatai
Hirdető neve: dh.hu - Debrecen, Derék utca
Kapcsolattartó: Dr. Kocsár Janka Ildikó
Hirdető telefonszáma: +36302055998
Honlap: -
 
Üzenetet küldhet a hirdetőnek, árajánlatot tehet az ingatlanra:
Az Ön neve:
Az Ön e-mail címe:
Üzenet: