Ingatlan Televízió
Ingatlan Televízió
további hirdetések
adatlap bezárása

Szászvár 
 

Hivatkozási szám: 5919937
Ingatlan adatai
Irányár: 26 900 000 Ft
Típus: lakás (tégla)
Kategória: eladó
Alapterület: 70 m2
Fűtés: gáz (konvektor)
Állapota: felújított
Szobák száma: 2
Építés éve: 1964
Szintek száma: 1
Részletes leírás
Eladó 2 szobás részben felújított ikerház Szászváron ideális választás családnak vagy befektetőknek egyaránt jó befektetés!

Baranya vármegyében, Bonyhád és Komló között elhelyezkedő Szászváron kínáljuk eladásra a 70 nm-es, 2 szobás ikerházat, amely egy 531 nm-es telekkel rendelkezik. A téglaépítésű ingatlan cserépfedésű tetővel bír, a felújítás már megkezdődött, így új tulajdonosa saját elképzelése szerint alakíthatja tovább.

A nyílászárók már korszerű műanyag hőszigetelt ablakokra lettek cserélve, a hátsó rész felé teraszajtó került beépítésre, amely lehetőséget ad egy kényelmes pihenő terasz kialakítására. Az elektromos hálózat felújított, a konvektorok cseréjéhez pedig a radiátorok már rendelkezésre állnak.

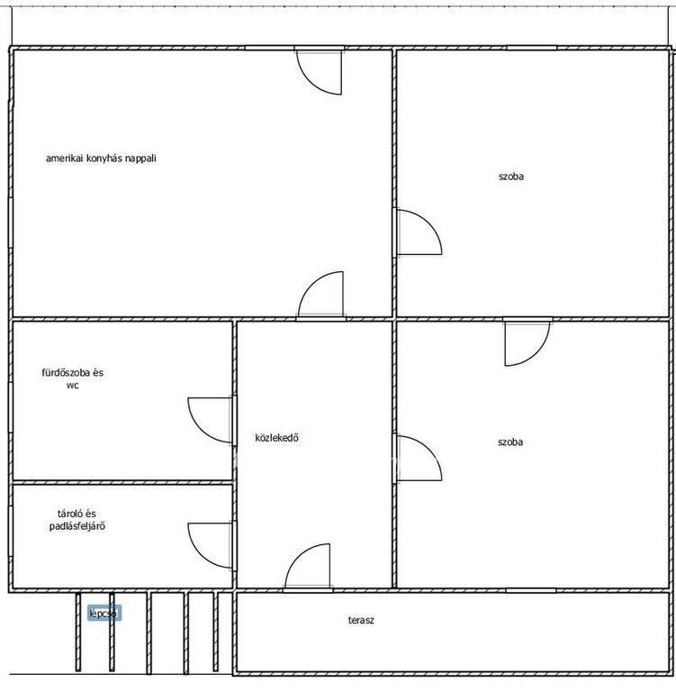
Az ingatlan praktikus elrendezéssel rendelkezik: a tágas folyosóról nyílnak a helyiségek, ami jó átláthatóságot és kényelmes közlekedést biztosít.

Alaprajzi adatok:

Folyosó: 6 nm

Utcai szoba: 18 nm

Hátsó szoba: 16 nm

Amerikai nappalis konyha: 20 nm + részben kialakított terasz

Fürdőszoba + WC: 5 nm

Tároló és padlásfeljáró: 5 nm a padlás beépítésével könnyen bővíthető a hasznos terület.

A fűtést jelenleg gázkonvektor biztosítja, így a korszerűbb fűtési megoldások, például cirkó vagy hőszivattyú, kiépítése is egyszerűen megoldható.

Szászvár község kitűnő infrastruktúrával rendelkezik: helyben található iskola, óvoda, bölcsőde, orvosi rendelő, gyógyszertár, üzletek, posta, vendéglő. A település kiváló buszmegközelítéssel bír, rendszeres járatok indulnak Komló, Dombóvár és Bonyhád irányába.

CSOK vagy támogatott 3%hitel igényléséhez is szakértő segítséget nyújtunk ügyfeleinknek, hogy a vásárlása gördülékeny és zökkenőmentes legyen.

Amennyiben felkeltette érdeklődését ez az ingatlan, kérem, keressen bizalommal a hét bármely napján! M323898

Referencia szám: M323898
További adatok
Telekterület: 531 m2
Kert mérete: -
Erkély mérete: -
Felszereltség: -
Parkolás: lakáshoz van kültéri parkoló
Kilátás: -
Egyéb extrák:  
Hirdető adatai
Hirdető neve: otpip.hu - Pécs Király utca 75 - OTP Ingatlanpont Iroda
Kapcsolattartó: Szabó Ágnes
Hirdető telefonszáma: +36205097862
Honlap: -
 
Üzenetet küldhet a hirdetőnek, árajánlatot tehet az ingatlanra:
Az Ön neve:
Az Ön e-mail címe:
Üzenet: