Ingatlan Televízió
Ingatlan Televízió
további hirdetések
adatlap bezárása

Székesfehérvár 
 

Hivatkozási szám: 5919957
Ingatlan adatai
Irányár: 239 000 000 Ft
Típus: kereskedelmi/ipari ingatlan
Kategória: eladó
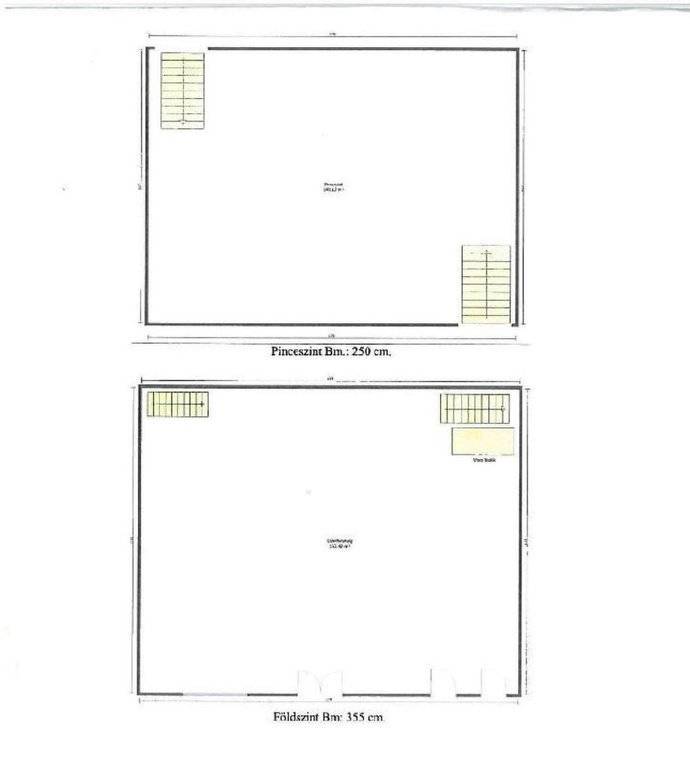
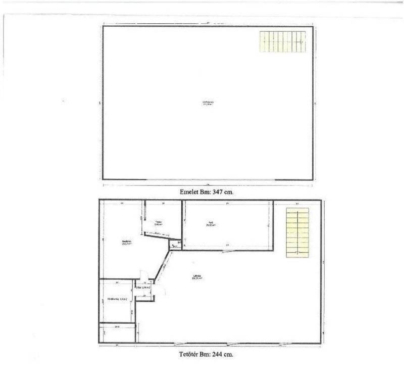
Alapterület: 604 m2
Fűtés: gáz (cirko)
Állapota: felújítást igényel
Szobák száma: -
Építés éve: 1996
Szintek száma: -
Részletes leírás
Prémium befektetési lehetőség Székesfehérvár történelmi belvárosában! Hotel vagy társasház fejlesztésre!
Eladó Székesfehérvár történelmi belvárosának az egyik legfrekventáltabb pontján, a sétálóutcában elhelyezkedő és az Országalma közvetlen közelében lévő , több helyrajzi számból álló, összesen 670 m2 összterületű, mintegy 604 m? hasznos alapterületű, négyszintes , szerkezetkész állapotú ingatlan. Az ingatlan vasbeton szerzkezetű, tégla falazatú, cserép fedésű.
Az épület 1996-ban épült, jelenleg felújítandó állapotú, 3,25 m belmagasságú, összközműves ingatlan, amely kiváló lehetőséget kínál értéknövelő fejlesztésre. Elhelyezkedése és mérete miatt különösen alkalmas Hotel, Apartman vagy több lakásos társasház befektetési projekt kialakítására.

Befektetés! Kiemelkedő lehetőség!
Az ingatlan elhelyezkedése miatt turisztikai célú hasznosításra különösen értékes. A belvárosi környezet, a történelmi látnivalók és a sétálóövezet közelsége ideálissá teszi boutique hotel, apartmanház vagy prémium lakások kialakítására.
A projekt megfelelő átalakítással jelentős értéknövekedési potenciált hordoz.
További információért és megtekintésért kérem vegye fel velem a kapcsolatot.

Az OTP Ingatlanpont teljeskörű ügyintézéssel áll az eladók és a vevők rendelkezésére!

A kínálatunkból választott ingatlan finanszírozásához kedvezményes hitel- és pénzügyi konstrukciókat kínálunk. Az adásvételi szerződés megkötéséhez igény szerint megbízható ügyvédi közreműködést és a kapcsolódó ügyek intézéséhez segítséget nyújtunk.

Hirdetésben szereplő látványtervre vonatkozó kép Mesterséges Intelligencia segítségével lett létrehozva.
További adatok
Telekterület: -
Kert mérete: -
Erkély mérete: -
Felszereltség: -
Parkolás: -
Kilátás: -
Egyéb extrák:  
Hirdető adatai
Hirdető neve: otpip.hu - Székesfehérvár Palotai út 25 - OTP Ingatlanpont Iroda
Kapcsolattartó: Kovácsné Stromáyer Anita
Hirdető telefonszáma: +36-70-636-7791
Honlap: -
 
Üzenetet küldhet a hirdetőnek, árajánlatot tehet az ingatlanra:
Az Ön neve:
Az Ön e-mail címe:
Üzenet: