Ingatlan Televízió
Ingatlan Televízió
további hirdetések
adatlap bezárása

Tatabánya 
 

Hivatkozási szám: 5920389
Ingatlan adatai
Irányár: 69 900 000 Ft
Típus: lakás (tégla)
Kategória: eladó
Alapterület: 86 m2
Fűtés: távfűtés
Állapota: -
Szobák száma: 3
Építés éve: 1965
Szintek száma: -
Részletes leírás
Természetközeli nyugalom, elegáns keretek között

Tatabánya Óvárosának csendes, zöldövezeti részén kínálunk egy közel 96 m²-es, kertkapcsolatos lakást – egy otthont, amely méreteiben és hangulatában inkább egy kisebb ház érzetét adja.

A terek arányosak, átgondoltak, finoman őrzik egy igényes, kulturált múlt lenyomatát. A konyha és az üvegezett veranda közötti nagy tálalóablak különleges kapcsolatot teremt: a veranda egész évben használható, természetközeli étkezőként működik, közvetlen kertkapcsolattal.

A jelenlegi nagy hálószoba korábban két helyiség volt, így igény szerint újra osztható.

A fűtést kiváló állapotú öntöttvas radiátorok adják, és klíma is rendelkezésre áll. A nyílászárók használhatók, ugyanakkor a korszerűsítés lehetősége adott.
Saját, közvetlenül a bejárat mellett nyíló tároló tartozik a lakáshoz.

Ez az ingatlan nem csupán lakásként értelmezhető, de családosoknak egy élmény a hatalmas nappalijával.
Terei és hangulata miatt kiváló lehet:
– elegáns irodának, ahol a társsasházi környezet előnyt jelent
– magánrendelőnek
– vagy akár alkotótérnek egy művész számára, ahol a fény, a nyugalom és a tér inspiráló közeget ad-

Az ingatlan reális áron kerül piacra. Festéssel azonnal költözhető, de a mai igényekhez igazítás teret ad az egyéni elképzeléseknek.

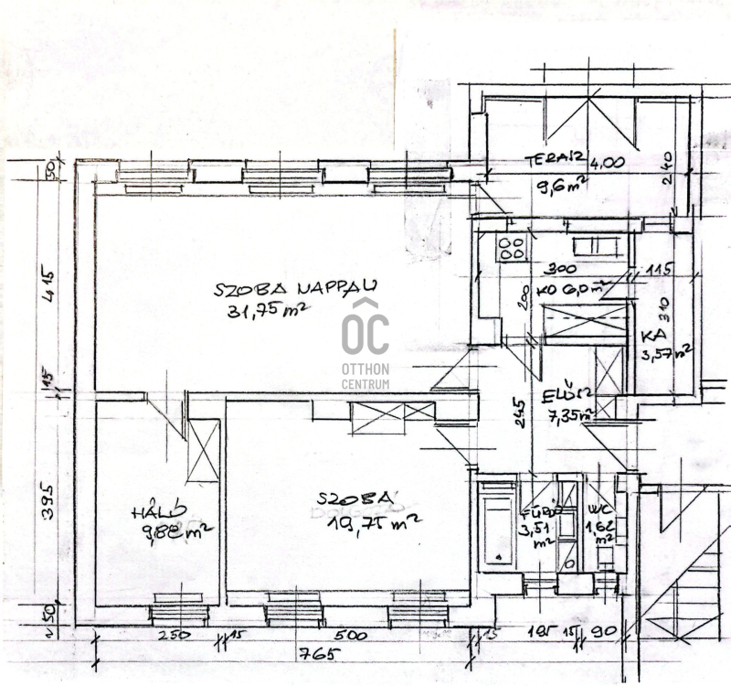
A képek látványterveket is tartalmaznak, és az alaprajzok a pontos méreteket mutatják.
További adatok
Telekterület: -
Kert mérete: -
Erkély mérete: 10 m2
Felszereltség: -
Parkolás: -
Kilátás: utcai
Egyéb extrák:  
Hirdető adatai
Hirdető neve: Otthon Centrum
Kapcsolattartó: Török Ildikó
Hirdető telefonszáma: +36 70 412 3611
Honlap: -
 
Üzenetet küldhet a hirdetőnek, árajánlatot tehet az ingatlanra:
Az Ön neve:
Az Ön e-mail címe:
Üzenet: