Ingatlan Televízió
Ingatlan Televízió
további hirdetések
adatlap bezárása

Gyöngyös 
 

Hivatkozási szám: 5920399
Ingatlan adatai
Irányár: 79 000 000 Ft
Típus: kereskedelmi/ipari ingatlan
Kategória: eladó
Alapterület: 185 m2
Fűtés: -
Állapota: -
Szobák száma: -
Építés éve: -
Szintek száma: -
Részletes leírás
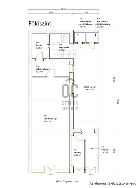
Gyöngyös belvárosában, a Fő tér közvetlen közelében kínálunk megvételre egy kiváló adottságokkal rendelkező, két szintes, 185 m²-es sorházi ingatlant, amely üzleti és lakófunkciót egyaránt magában foglal.

Az ingatlan kis belső udvarral, pincével és beépíthető tetőtérrel rendelkezik, így további bővítési lehetőséget kínál.

Földszint – üzlethelyiség
Az utcafronton jelenleg is működő szemvizsgáló szalon található, amely stabil üzleti hasznosításra ad lehetőséget.

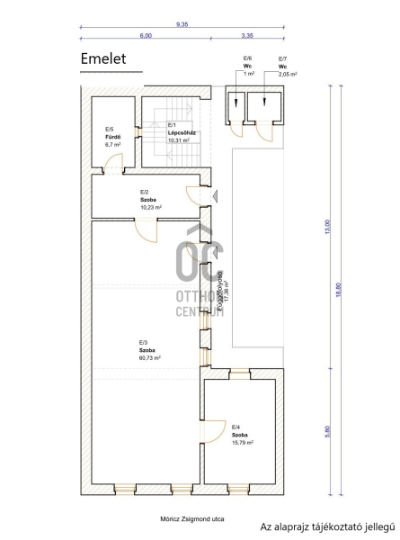
Emelet – lakás (92 m²)
A lakás a függőfolyosón keresztül közelíthető meg, és kifejezetten világos, napfényes terekkel rendelkezik:

tágas, 60 m²-es amerikai konyhás nappali
15 m²-es hálószoba
a lakás belső részében egy további szoba
6,7 m²-es zuhanyzós fürdőszoba

További előnyök

beépíthető tetőtér
pince az épület alatt
kis, intim belső udvar
kiváló belvárosi lokáció

Az ingatlan elsősorban befektetők számára ideális, hiszen az üzlet és a lakás együttes hasznosítása többféle bevételi lehetőséget biztosít.

Ne hagyja ki ezt a ritka belvárosi befektetési lehetőséget, hívjon bizalommal és egyeztessünk időpontot a megtekintésre!
További adatok
Telekterület: -
Kert mérete: -
Erkély mérete: -
Felszereltség: -
Parkolás: -
Kilátás: -
Egyéb extrák:  
Hirdető adatai
Hirdető neve: Otthon Centrum
Kapcsolattartó: Juhász Andrea
Hirdető telefonszáma: +36 70 465 7001
Honlap: -
 
Üzenetet küldhet a hirdetőnek, árajánlatot tehet az ingatlanra:
Az Ön neve:
Az Ön e-mail címe:
Üzenet: