Ingatlan Televízió
Ingatlan Televízió
további hirdetések
adatlap bezárása

Tiszaújváros 
Rózsa utca 

Hivatkozási szám: 5921243
Ingatlan adatai
Irányár: 32 000 000 Ft
Típus: lakás (tégla)
Kategória: eladó
Alapterület: 49 m2
Fűtés: távfűtés
Állapota: felújított
Szobák száma: 2
Építés éve: 1975
Szintek száma: 1
Részletes leírás
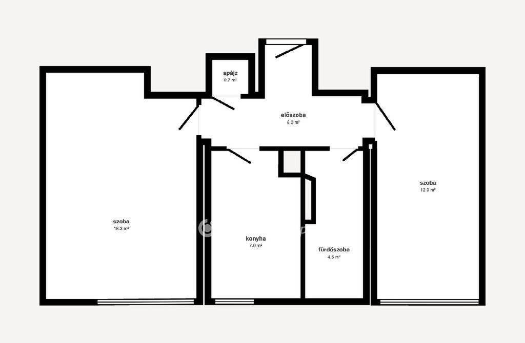
Tiszaújváros egyik legkedveltebb és legnyugodtabb részén a Rózsa utcában az idősek otthona közvetlen szomszédságában eladó egy harmadik emeleti, 49 négyzetméteres két szobás jó állapotú és azonnal költözhető lakás, amely tökéletes választás saját otthonnak vagy befektetésnek egyaránt, az ingatlan egyik legnagyobb előnye a rendkívül praktikus elosztás hiszen a két szoba külön nyílik, biztosítva ezzel a lakók zavartalan magánszféráját, a kényelmet fokozza a modern műanyag nyílászárók megléte és az esztétikus laminált parketta burkolat, a helyiségek tágasak a nagy konyha és a tágas fürdőszoba mellett egy külön spájz is helyet kapott a tárolás megkönnyítésére, a lakás távfűtéses kulturált állapotú és tehermentes így kifizetés után rögtön birtokba vehető, a közvetlen környezet kiváló infrastruktúrával rendelkezik, pár perces sétával elérhető a Spar szupermarket gyógyszertár több orvosi rendelő és iskola is, miközben a parkolás közvetlenül a ház előtt ingyenesen és kényelmesen megoldható. A lakáshoz saját pince is tartozik. Ez a világos és rendezett otthon várja új tulajdonosát a város egyik legzöldebb és legélhetőbb utcájában, ahol minden fontos szolgáltatás karnyújtásnyira van. Jöjjön el garantáltan nem fog csalódni! Érdeklődését és hívását a hét minden napján szívesen fogadom: hétfőtől szombatig 7:00 és 21:00 óra között, vasárnap pedig 8:00 és 20:00 óra között várom megtisztelő megkeresését.

OTP Banki hátterünknek köszönhetően finanszírozási igényekben (pl. Otthon Start Hitelprogram , Babaváró, Falusi CSOK, CSOK Plusz, Lakáshitel, Személyi kölcsön stb.), illetve biztosítások tekintetében is díjmentesen, soron kívüli ügyintézéssel segítem ügyfeleim! Kérem tekintse meg, virtuális sétámat is. Hívása során hivatkozzon az M323773 referenciaszámra!

Referencia szám: M323773
További adatok
Telekterület: -
Kert mérete: -
Erkély mérete: -
Felszereltség: -
Parkolás: -
Kilátás: -
Egyéb extrák:  
Hirdető adatai
Hirdető neve: otpip.hu - Miskolc Szemere Bertalan utca 20 - OTP Ingatlanpont Iroda
Kapcsolattartó: Piskóti Tibor Lajos
Hirdető telefonszáma: +36-70-322-2946
Honlap: -
 
Üzenetet küldhet a hirdetőnek, árajánlatot tehet az ingatlanra:
Az Ön neve:
Az Ön e-mail címe:
Üzenet: