Ingatlan Televízió
Ingatlan Televízió
további hirdetések
adatlap bezárása

Gemzse 
 

Hivatkozási szám: 5921706
Ingatlan adatai
Irányár: 12 000 000 Ft
Típus: ház
Kategória: eladó
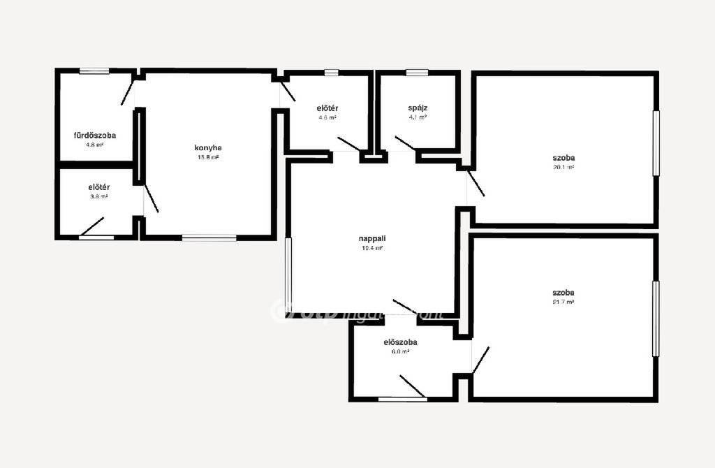
Alapterület: 110 m2
Fűtés: gáz (konvektor)
Állapota: felújítást igényel
Szobák száma: 2
Építés éve: 1970
Szintek száma: 1
Részletes leírás
Eladó felújítandó családi ház Gemzse fő utcáján nagy telekkel, melléképületekkel!

Gemzse fő utcáján kínálok megvételre egy 110 m2, 2 szobás, felújítandó családi házat, amely kiváló lehetőség akár saját otthon kialakítására, akár befektetés céljára.

Az ingatlan főbb jellemzői:

2 tágas szoba

konyha

fürdőszoba és WC

vályog falazat

fűtés: konvektor és cserépkályha

A ház egy 2133 m2 telken helyezkedik el, amely bőséges teret biztosít kertészkedésre, gazdálkodásra vagy akár további fejlesztésekre.

Az udvaron található:
- melléképület
- garázs
- pince

Elhelyezkedésének köszönhetően könnyen megközelíthető, a fő utcai fekvés miatt minden fontosabb intézmény gyorsan elérhető.

Ha olyan ingatlant keres, amelyet saját elképzelései szerint újíthat fel, és értéket szeretne teremteni, akkor ez a ház kiváló választás lehet!

Érdeklődni privát üzenetben vagy telefonon lehetséges.Ez az ingatlan ideális választás családoknak, gazdálkodóknak vagy azoknak, akik nagy telekre és biztos értékre vágynak.
Hívjon most, és foglaljon időpontot megtekintésre az ilyen adottságú ingatlanok ritkán maradnak sokáig a piacon!
OTP Banki hátterünknek köszönhetően finanszírozási igényekben (pl. Otthon Start Hitelprogram, Babaváró, Falusi CSOK, CSOK Plusz, Lakáshitel, Személyi kölcsön stb.), illetve biztosítások tekintetében is díjmentesen, soron kívüli ügyintézéssel segítem ügyfeleim! Referenciaszám: M323806

https://my.matterport.com/show/?m=p48fart40q34z3prigkhupwib&views=0&mls=1
További adatok
Telekterület: 2 133 m2
Kert mérete: -
Erkély mérete: -
Felszereltség: -
Parkolás: lakáshoz van kültéri parkoló
Kilátás: -
Egyéb extrák:  
Hirdető adatai
Hirdető neve: otpip.hu - Nyíregyháza Bocskai utca 18-20 - OTP Ingatlanpont Iroda
Kapcsolattartó: Luterán Lászlóné
Hirdető telefonszáma: +36706156858
Honlap: -
 
Üzenetet küldhet a hirdetőnek, árajánlatot tehet az ingatlanra:
Az Ön neve:
Az Ön e-mail címe:
Üzenet: