Ingatlan Televízió
Ingatlan Televízió
további hirdetések
adatlap bezárása

Vásárosnamény 
 

Hivatkozási szám: 5921711
Ingatlan adatai
Irányár: 26 900 000 Ft
Típus: ház
Kategória: eladó
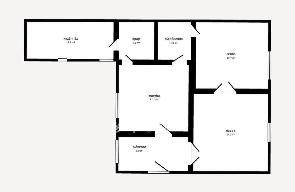
Alapterület: 90 m2
Fűtés: gáz (cirko)
Állapota: felújított
Szobák száma: 2
Építés éve: 1970
Szintek száma: 1
Részletes leírás
Felújított családi ház eladó Vásárosnamény fő utcáján ? nagy telekkel!

Vásárosnamény fő utcáján kínálok megvételre egy 90 m?-es, 2 szobás, felújított családi házat, amely kiváló választás lehet családoknak vagy befektetőknek egyaránt.

Az ingatlan főbb jellemzői:

2 tágas szoba

fürdőszoba

rendezett belső terek

műanyag nyílászárók

jó állapot

A ház egy 3534 m?-es, tágas telken helyezkedik el, amely számos lehetőséget kínál kertészkedésre, gazdálkodásra vagy akár további fejlesztésekre.

Az udvaron több melléképület is található, amelyek tárolásra, műhelynek vagy gazdasági célokra is alkalmasak.

Központi elhelyezkedésének köszönhetően minden fontos intézmény könnyen elérhető, mégis saját, nagy területű udvar biztosítja a kényelmet és a nyugalmat.

Per- és tehermentes
Azonnal birtokba vehető
Ez az ingatlan ideális választás családoknak, gazdálkodóknak vagy azoknak, akik nagy telekre és biztos értékre vágynak.
Hívjon most, és foglaljon időpontot megtekintésre az ilyen adottságú ingatlanok ritkán maradnak sokáig a piacon!
OTP Banki hátterünknek köszönhetően finanszírozási igényekben (pl. Otthon Start Hitelprogram, Babaváró, Falusi CSOK, CSOK Plusz, Lakáshitel, Személyi kölcsön stb.), illetve biztosítások tekintetében is díjmentesen, soron kívüli ügyintézéssel segítem ügyfeleim! Referenciaszám: M323785

Ne hagyja ki ezt a kiváló lehetőséget!
További információért és megtekintésért keressen bizalommal!




https://my.matterport.com/show/?m=zsqmw074bmapsb8qgx7h77s5c&views=0&mls=1
További adatok
Telekterület: 3 534 m2
Kert mérete: -
Erkély mérete: -
Felszereltség: -
Parkolás: lakáshoz van kültéri parkoló
Kilátás: -
Egyéb extrák:  
Hirdető adatai
Hirdető neve: otpip.hu - Nyíregyháza Bocskai utca 18-20 - OTP Ingatlanpont Iroda
Kapcsolattartó: Luterán Lászlóné
Hirdető telefonszáma: +36706156858
Honlap: -
 
Üzenetet küldhet a hirdetőnek, árajánlatot tehet az ingatlanra:
Az Ön neve:
Az Ön e-mail címe:
Üzenet: