Ingatlan Televízió
Ingatlan Televízió
további hirdetések
adatlap bezárása

Lenti 
 

Hivatkozási szám: 5921738
Ingatlan adatai
Irányár: 14 900 000 Ft
Típus: telek
Kategória: eladó
Alapterület: -
Fűtés: -
Állapota: -
Szobák száma: -
Építés éve: -
Szintek száma: -
Részletes leírás
Az Openhouse Zalaegerszeg Ingatlaniroda kínálatában eladó a #180464 hivatkozási számú lenti zárt kert.

Lentihegyen panorámás zártkert eladó – nyugalom, természet, lehetőség egy helyen


Lenti egyik egyre népszerűbb, már lakott részén, a Harangláb utcában kínálunk eladásra egy igazán jó adottságokkal rendelkező zártkerti ingatlant, amely csodás, nyugati tájolású panorámával várja új tulajdonosát.


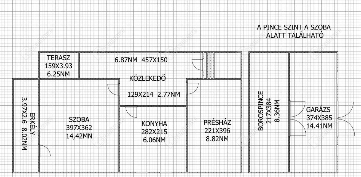
A 62 m²-es épületben jelenleg egy szoba, egy konyha, egy tágas előszoba-közlekedő, valamint egy külön présház található, amely könnyedén átalakítható akár egy második szobává vagy fürdőszobává – így az ingatlan tovább bővíthető, személyre szabható.


Az alsó szinten egy garázs és egy tároló kapott helyet, az épület folytatásában pedig egy fedett tároló vagy kocsibeálló is rendelkezésre áll.


A 3414 m²-es telek ideális választás mindazok számára, akik kertészkedni szeretnének, vagy egyszerűen csak élveznék a természet közelségét és a nyugodt környezetet.


Főbb jellemzők:



tégla épület (1976)
hullámpalás tető
kelet–nyugati tájolás
víz és villany bevezetve
gáz a telekhatáron
kályhás fűtés, villanybojleres melegvíz
aszfaltos úton könnyen megközelíthető

Az ingatlan felújítandó, de éppen ez adja meg a lehetőséget arra, hogy saját elképzeléseid szerint alakítsd ki – ráadásul már most is lakható állapotba hozható kisebb ráfordítással.


A környék igazi értéke a fekvése: a Zalai-dombság nyugati peremén, a Kerka völgyében, közel a szlovén határhoz, ahol a természet, a csend és a kikapcsolódási lehetőségek adottak. Lenti közkedvelt fürdőváros, így akár hétvégi háznak, akár állandó otthonnak is remek választás.


Fontos: zártkerti, kifüggesztéses ingatlan (30 napos eljárással).


Ha egy nyugodt, panorámás helyet keresel, ahol megvalósíthatod a saját elképzeléseidet, ezt érdemes megnézned.

Ha felkeltette érdeklődését ez az eladó lenti zárt kert, vagy bármely más zárt kert és bővebb információt szeretne, keressen bizalommal.Hivatkozási szám: #180464

Az Openhouse Zalaegerszeg Ingatlaniroda tagjaként várom Önt az országos hálózatunk teljes kínálatával.

A zárt kert vásárláshoz hitelt igényelne? Ingyenes hitelközvetítéssel segít Önnek bankfüggetlen hitelszakértőnk.

További szolgáltatásainkkal (pl. értékbecslés, energetikai tanúsítvány, jogi háttér) is segítjük Önt a vásárlásban.
Az otthon érték. Az ingatlan üzlet.
Érd.: Laska Róbert 06305295800

Referencia szám: 180464-ITV
További adatok
Telekterület: 3 414 m2
Kert mérete: -
Erkély mérete: -
Felszereltség: -
Parkolás: -
Kilátás: -
Egyéb extrák:  
Hirdető adatai
Hirdető neve: oh.hu - Openhouse Zalaegerszeg Ingatlaniroda
Kapcsolattartó: Laska Róbert
Hirdető telefonszáma: +36303800366
Honlap: -
 
Üzenetet küldhet a hirdetőnek, árajánlatot tehet az ingatlanra:
Az Ön neve:
Az Ön e-mail címe:
Üzenet: