Ingatlan Televízió
Ingatlan Televízió
további hirdetések
adatlap bezárása

Hosszúhetény 
 

Hivatkozási szám: 5922067
Ingatlan adatai
Irányár: 97 000 000 Ft
Típus: lakás (tégla)
Kategória: eladó
Alapterület: 105 m2
Fűtés: -
Állapota: felújított
Szobák száma: 3
Építés éve: 1980
Szintek száma: 1
Részletes leírás
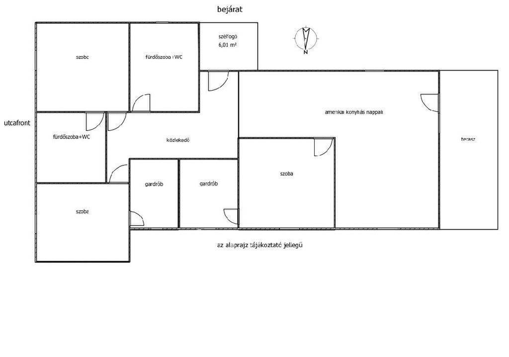
105 négyzetméteres ház eladó Hosszúhetényben a központ közelében!

Pontosabban 2026-2027-ben fog elkészülni a teljes felújítás. Egy minden részében felújított ház lesz belőle.
3 szoba lesz, 2 gardróbbal. A két gardrób igény szerint újabb szobává alakítható át. Lehetőség van más megoldásra is, a belső választófalak igény szerint átrakhatók.

2 db fürdőszoba + WC lesz kialakítva, az egyik a nagyhálóból nyílik káddal, a másik a közlekedőből tusolóval.

Egy amerikai konyhás nappali lesz kialakítva. A megfelelő csatlakozások (víz, szennyvíz, villany) ki lesznek alakítva, de a konyabútort nem építi be az építő cég. A mennyiben az új tulajdonos kéri, az is megteszi. Olyan méretű, és elrendezésű, valamint gépesítettségű konyha lesz, amit az új tulajdonos kér. Itt klíma is lesz felszerelve (igény szerint máshova is lehet). Innen lehet kimenni a teraszra, ami az udvar felé nyílik, ami 1149 négyzetméteres a házzal együtt.

Minden burkolóanyag (csempe, járólap, laminált padló) új lesz. Az új tulajdonos megválaszthatja a színt, és a minőséget. Amennyiben a betervezett jó minőségi szint fölé szeretne menni az új tulajdonos, arra is lesz lehetőség az árkülönbözet kifizetése után.

A fűtés hőszivattyús rendszerrel lesz kialakítva padlófűtéssel. Teljesen új vezetékek lesznek mindenütt, úgy, hogy az estlegesen később felszerelésre kerülő napelem rendszer fogadására is ki lesz építve. Mivel a gázcsonk a kerítésen belül van, akár gáz cirkófűtés is lehetséges.

Új lesz a tető, az összes fal téglából lesz 15 centiméteres hűszigetelő burkolattal. Minden nyílászáró új lesz. A külsők hőszigetelt műanyagból, elektromos redőnyökkel, és szúnyoghálóval lesznek felszerelve.

Az udvarban egy féltetős kialakítású garázs lesz kialakítva. Sok melléképület van, szerszámok. kerékpárok, babakocsik tárolására, vagy gazdálkodásra. Egy kút is van az udvarban, amivel az öntözést lehet megoldani.

Amennyiben az új tulajdonos megveszi az ingatlant, fel lesz gyorsítva a felújítás, fél év múlva kulcsátadás.

Referenciaszám: M325548

97000000 Ft

Referencia szám: M325548
További adatok
Telekterület: 1 149 m2
Kert mérete: -
Erkély mérete: -
Felszereltség: -
Parkolás: garázs
Kilátás: -
Egyéb extrák:  
Hirdető adatai
Hirdető neve: otpip.hu - Pécs Király utca 75 - OTP Ingatlanpont Iroda
Kapcsolattartó: Vincze László György
Hirdető telefonszáma: +36209384141
Honlap: -
 
Üzenetet küldhet a hirdetőnek, árajánlatot tehet az ingatlanra:
Az Ön neve:
Az Ön e-mail címe:
Üzenet: