Ingatlan Televízió
Ingatlan Televízió
további hirdetések
adatlap bezárása

Adács 
 

Hivatkozási szám: 5922119
Ingatlan adatai
Irányár: 39 000 000 Ft
Típus: lakás (tégla)
Kategória: eladó
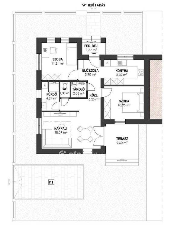
Alapterület: 68 m2
Fűtés: egyéb
Állapota: új
Szobák száma: 3
Építés éve: 2026
Szintek száma: 1
Részletes leírás
Már most foglalható! Elkezdődtek a munkálatok! Heves vármegye, Gyöngyöstől 10 km-re, Adács település északi részén, csendes, nyugodt környezetben, újonnan épülő lakóparkban kínálok eladásra 3 szobával rendelkező, 68,23 m2, összközműves házat, kertkapcsolattal, autóbeállási lehetőséggel, 250 m2 telken, mely egy 4 lakásos társasház része. Az épület földszintes kialakítású. Falai POROTHERM 30-as téglából készültek. A tető, gomba-és lángmentesített, fűrészelt fenyő, héjazata antracit kerámia cserép. Külső falai fehér, 15 cm-es szigeteléssel. A lábazat a - tetőhöz illő - szürke színezéssel. Nyílászárói műanyag, 3 rétegű, hőszigeteltek. A szobákban laminált parketta vagy hajópadló - igény szerint -, a többi helyiségben jó minőségű kerámia lap. A fürdőben kád vagy zuhany - igény szerint-. A padlófűtéshez és a meleg vízhez szükséges hőenergiát kondenzációs kazán biztosítja. Az ár tartalmaz egy H tarifás hűtő-fűtő klímát, 1 mozgás-és nyitásérzékelő riasztó berendezést és 1 éjjellátó kamerát. Az épületeket - az utcafronti részen zsalukőből vagy téglából épített, az udvari részen élősövény és drótkerítés választja el egymástól. A nyitott autóbeálló burkolva, egyéb terület füvesítve. Fekvésének és elhelyezkedésének köszönhetően világos, barátságos otthon, panorámás környezetben. Személyautóval, autóbusszal és vonattal egyaránt jól megközelíthető. Adács dinamikusan fejlődő település. Megtalálható óvoda, iskola, orvosi rendelő, gyógyszertár, egészségház, idősek otthona, horgásztó, posta, üzlet. A közelben számtalan munkalehetőség a Pipis-hegyen, Gyöngyösön az ipari parkban, Gyöngyöshalászon és Adács mellett. Ingatlanirodánk ügyvédi háttérrel rendelkezik, valamint CSOK, babaváró- Otthon Start Hitelprogram és kedvezményes hitel ügyintézésével segíti vásárlását. 10% befizetése mellett már most foglalható, miután saját ízlése szerint alakíthatja az ingatlan belső arculatát, költségegyeztetéssel. Az eladó pedig kezeskedik arról, hogy ezen az áron, kulcsrakész állapotban fogja megkapni otthonát! Az építkezés várható befejezése 2026.11. hó. Ha felkeltette érdeklődését, hívjon bizalommal! További műszaki adatokkal szolgálok! A munkafolyamatokról folyamatos képekkel bővíteni a hirdetésemet!

irányár: 39000000 Ft
Érd.: Kocsis Tiborné 36706253200
További adatok
Telekterület: 250 m2
Kert mérete: -
Erkély mérete: 10 m2
Felszereltség: -
Parkolás: lakáshoz van kültéri parkoló
Kilátás: -
Egyéb extrák:  
Hirdető adatai
Hirdető neve: otpip.hu - Eger Szent János utca 6-8 - OTP Ingatlanpont Iroda
Kapcsolattartó: Balóné Szolner Zsuzsanna
Hirdető telefonszáma: +36-70-625-3200
Honlap: -
 
Üzenetet küldhet a hirdetőnek, árajánlatot tehet az ingatlanra:
Az Ön neve:
Az Ön e-mail címe:
Üzenet: