Ingatlan Televízió
Ingatlan Televízió
további hirdetések
adatlap bezárása

Nyírjákó 
 

Hivatkozási szám: 5923716
Ingatlan adatai
Irányár: 31 500 000 Ft
Típus: ház
Kategória: eladó
Alapterület: 82 m2
Fűtés: gáz (héra)
Állapota: felújított
Szobák száma: 2
Építés éve: 1970
Szintek száma: 1
Részletes leírás
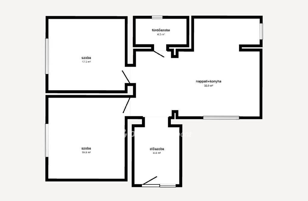
Nyugodt, csendes környezetben, Nyírjákó településen eladó egy 82,4 négyzetméteres, beton alapra épült vályogház 1071 négyzetméteres telken. Az ingatlan elrendezése praktikus, két szoba, amerikai konyhás nappali, fürdőszoba wc-vel és előszoba került kialakításra. A ház négy évvel ezelőtt teljes körű felújításon esett át, mely során megtörtént a tetőcsere, a külső homlokzat és a nyílászárók cseréje redőnnyel és szúnyoghálóval, a beltéri ajtók cseréje, valamint a teljes villany és víz szennyvízhálózat korszerűsítése. A fűtést kombi gázkazán biztosítja, amely a melegvízellátásról is gondoskodik, emellett hűtő fűtő klíma is beépítésre került. Az ingatlan álmennyezetet kapott 10 cm-es kőzetgyapot szigeteléssel. A szobák laminált padlóval, a többi helyiség járólappal burkolt. A 30 négyzetméteres fedett terasz kényelmes pihenést biztosít. A telken található egy kétfakkos melléképület pala tetővel, kutyakennel, valamint két méter magas betonpanel kerítés gondoskodik a biztonságról. A térkövezett kocsifeljáró és járda tovább növeli a komfortérzetet. Kamerarendszer is kiépítésre került. A közelben minden fontos szolgáltatás megtalálható, a környék barátságos, rendezett, segítőkész szomszédokkal.
OTP Banki hátterünknek köszönhetően finanszírozási igényekben (pl. Otthon Start Hitelprogram, Babaváró, Falusi CSOK, CSOK Plusz, Lakáshitel, Személyi kölcsön stb.), illetve biztosítások tekintetében is díjmentesen, soron kívüli ügyintézéssel segítem ügyfeleim! Referenciaszám:M324631
https://my.matterport.com/show/?m=yc1mfcish1uzh4swzfa6ds7nb&views=0&mls=1
További adatok
Telekterület: 1 071 m2
Kert mérete: -
Erkély mérete: -
Felszereltség: -
Parkolás: -
Kilátás: -
Egyéb extrák:  
Hirdető adatai
Hirdető neve: otpip.hu - Nyíregyháza Bocskai utca 18-20 - OTP Ingatlanpont Iroda
Kapcsolattartó: Konc Richárd
Hirdető telefonszáma: +36705973523
Honlap: -
 
Üzenetet küldhet a hirdetőnek, árajánlatot tehet az ingatlanra:
Az Ön neve:
Az Ön e-mail címe:
Üzenet: