Ingatlan Televízió
Ingatlan Televízió
további hirdetések
adatlap bezárása

Nyírjákó 
 

Hivatkozási szám: 5923727
Ingatlan adatai
Irányár: 39 700 000 Ft
Típus: ház
Kategória: eladó
Alapterület: 90 m2
Fűtés: gáz (cirko)
Állapota: felújított
Szobák száma: 3
Építés éve: 1990
Szintek száma: 1
Részletes leírás
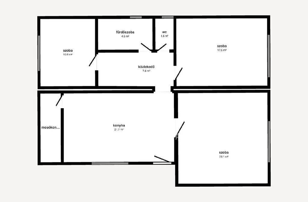
Nyírjákó főutcáján, központ közeli elhelyezkedéssel eladásra kínálok egy szilikát építésű, 90 nm-es, 3 szobás családi házat 7785 nm-es telken.
Az ingatlan praktikus elosztású, külön bejáratú szobákkal rendelkezik. Helyiségek: 3 szoba, konyha étkezővel, fürdőszoba /fürdőkáddal és zuhanyzóval/ , külön WC, közlekedő /ahol egy hatalmas beépített gardrób szekrény kapott helyet/, mosókonyha. A házhoz egy nagy, fedett terasz is tartozik, amely kellemes pihenési lehetőséget biztosít.
A ház műszaki állapota kiváló, 2015-ben teljes elektromos hálózat csere történt. A nyílászárók háromrétegű, műanyag hőszigetelt ablakok, mindenhol redőnnyel és szúnyoghálóval felszerelve.
A fűtést vegyes tüzelésű kazán és gázkazán biztosítja, melyet hűtő-fűtő klíma egészít ki a komfort növelése érdekében. A meleg víz ellátása villanybojlerrel megoldott. Az ingatlan energiahatékonyságát egy 5 kW teljesítményű NAPELEM rendszer segíti.
A tető cserépfedésű, a tetőtér beépíthető, így további lakótér kialakítására is lehetőség van. A ház háromnegyed része alatt pince található.
A körbekerített udvaron garázs is helyet kapott, az udvarra való bejutást elektromos kapu könnyíti meg. Az ingatlan riasztórendszerrel felszerelt.
A 7785 nm-es telek mérete miatt gazdálkodásra, állattartásra vagy akár további fejlesztésre is kiváló lehetőséget biztosít.
Megtekintésért keressen bizalommal, akár hétvégén is!
OTP Banki hátterünknek köszönhetően finanszírozási igényekben (pl. Otthon Start Hitelprogram, Babaváró, Falusi CSOK, CSOK Plusz, Lakáshitel, Személyi kölcsön stb.), illetve biztosítások tekintetében is díjmentesen, soron kívüli ügyintézéssel segítem ügyfeleim! Referenciaszám: M324192
Virtuális séta: https://my.matterport.com/show/?m=q0ki1sg3hdmpmpke738t2mtpd&views=0&mls=1
További adatok
Telekterület: 7 785 m2
Kert mérete: -
Erkély mérete: -
Felszereltség: -
Parkolás: garázs
Kilátás: -
Egyéb extrák:  
Hirdető adatai
Hirdető neve: otpip.hu - Nyíregyháza Bocskai utca 18-20 - OTP Ingatlanpont Iroda
Kapcsolattartó: Kissné Orosz Ildikó Krisztina
Hirdető telefonszáma: +36204680753
Honlap: -
 
Üzenetet küldhet a hirdetőnek, árajánlatot tehet az ingatlanra:
Az Ön neve:
Az Ön e-mail címe:
Üzenet: