Ingatlan Televízió
Ingatlan Televízió
további hirdetések
adatlap bezárása

Pécs 
Felsőmalom utca 

Hivatkozási szám: 5924072
Ingatlan adatai
Irányár: 59 900 000 Ft
Típus: lakás (tégla)
Kategória: eladó
Alapterület: 55 m2
Fűtés: gáz (cirko)
Állapota: felújított
Szobák száma: 1+2
Építés éve: 2000
Szintek száma: 1
Részletes leírás
Eladó Pécs belvárosának egyik legjobb részén egy különleges hangulatú, belső kétszintes tégla lakás.

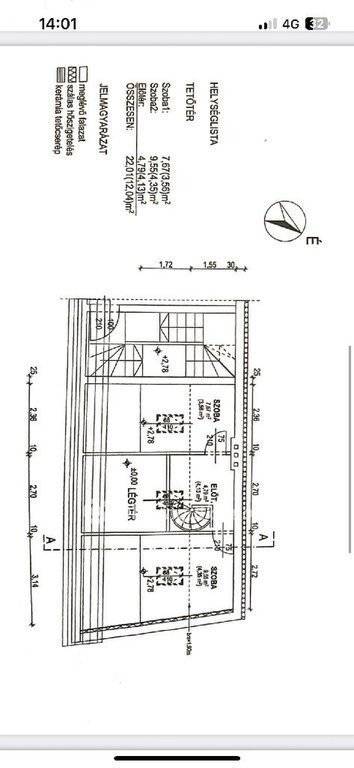
Az ingatlan egy rendezett, jó lakóközösségű társasház első emeletén található, és gyönyörű, megkímélt állapotban várja új tulajdonosát. A lakás nettó alapterülete 55 nm (tetőtér miatt), míg a valós használható tér kb. 65 nm.

Helyiségek: 1 szoba, 2 félszoba, konyha és fürdőszoba, praktikus belső kétszintes kialakítással, ami tágas és otthonos érzetet ad. A fűtésről új, modern gázkazán gondoskodik.

Belvárosi elhelyezkedésének köszönhetően minden fontos szolgáltatás könnyen elérhető. A társasház tégla építésű, csendes és barátságos lakóközösséggel.

Az ingatlanhoz külön megvásárolható egy garázs is, a lakás közvetlen közelében, 10 millió Ft irányáron.

Ideális választás saját otthonnak vagy befektetésnek is, hiszen elhelyezkedése és elrendezése miatt könnyen kiadható.

További információért vagy megtekintés egyeztetéséhez keressen bizalommal.
További adatok
Telekterület: -
Kert mérete: -
Erkély mérete: -
Felszereltség: -
Parkolás: garázs
Kilátás: -
Egyéb extrák:  
Hirdető adatai
Hirdető neve: otpip.hu - Pécsvárad Bem utca 2 - OTP Ingatlanpont Iroda
Kapcsolattartó: Gábor Panna Rebeka
Hirdető telefonszáma: +36706790724
Honlap: -
 
Üzenetet küldhet a hirdetőnek, árajánlatot tehet az ingatlanra:
Az Ön neve:
Az Ön e-mail címe:
Üzenet: