Ingatlan Televízió
Ingatlan Televízió
további hirdetések
adatlap bezárása

Budapest, XI.kerület 
 

Hivatkozási szám: 5924822
Ingatlan adatai
Irányár: 363 100 000 Ft
Típus: lakás (újépítésű)
Kategória: eladó
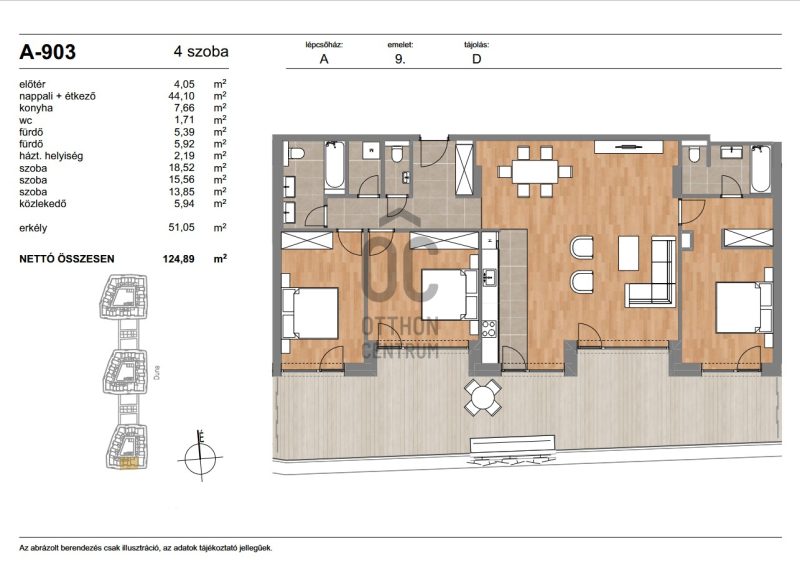
Alapterület: 125 m2
Fűtés: -
Állapota: új
Szobák száma: 4
Építés éve: 2028
Szintek száma: -
Részletes leírás
Projekt bemutatása

Ott, ahol a természet és a városi élet találkozik.
A budai Duna-parton megvalósuló új prémium fejlesztés a vízparti élet luxusát kínálja modern, elegáns formában.
Tágas teraszok, lenyűgöző panoráma, fenntartható műszaki megoldások – mindez néhány lépésre a folyótól, Buda dinamikusan fejlődő negyedében.

A budai életstílus új dimenziója

Ez a lakópark nem csupán otthon, hanem életérzés.
A teraszról a Duna látványa, a vízpart halk morajlása és a modern városi környezet tökéletes harmóniája adja az itt élők mindennapjainak különleges atmoszféráját.

A projekt két ütemben valósul meg:
- I. ütem: három elegáns, 9 emeletes épület
- II. ütem: három közvetlen vízparti épület, exkluzív kilátással és saját kikötővel

KIVÉTELES LOKÁCIÓ – tökéletes elérhetőség
- XI. kerület, közvetlenül a Duna-parton
- Savoya Park: pár perc sétára
- Etele Plaza: 10 perc autóval
- Kopaszi-gát: mindössze 4 km
- Móricz Zsigmond körtér: 13 perc busszal
- Villamos- és buszmegállók néhány perc sétára, minden szolgáltatás – iskolák, éttermek, bevásárlási lehetőségek – elérhető közelségben.

A környék Buda egyik leggyorsabban fejlődő területe, modern infrastruktúrával, vízparti sétányokkal és zöld parkokkal – a város új, természetközeli központja születik itt.

Kortárs építészet – időtálló elegancia
A lakóépületek modern, letisztult megjelenése a Duna vonalvezetését idézi.
A zöldtetők, parkosított udvarok és természetes anyaghasználat az épített környezet és a természet összhangját teremti meg.
- 2 szintes mélygarázs, elektromos autótöltési előkészítéssel
- Tágas, napfényes teraszok minden lakáshoz
- Háromrétegű nyílászárók, prémium hő- és hangszigeteléssel
- WPC teraszburkolatok, korszerű hőhídmentes homlokzati rendszer
- Közösségi zöldterek és pihenőkertek

MŰSZAKI TARTALOM – a jövő technológiája ma
- A fejlesztés kiemelt hangsúlyt helyez az energiahatékonyságra és a komfortérzetre:
- Környezetbarát levegős hőszivattyús rendszer
- Mennyezeti hűtés-fűtés, helyiségenként szabályozható termosztátokkal
- Okosvezérlés, távvezérelhető hőmérséklet-szabályozás
- Zöldtető és hővisszanyerős szellőzés
- Egyedi mérésű energiafogyasztás minden lakásban

A lakások belső kialakítása válogatott anyagkollekcióból választható, a klasszikus elegancia és a modern minimalizmus stílusában.

Élmény, ami túlmutat az otthon fogalmán

A lakópark lakói a vízpart nyugalmát, a zöld környezet frissességét és a budai életstílus kényelmét élvezhetik nap mint nap.
A saját klubhelyiség és kikötő a vízparti élet exkluzív élményét teszi teljessé.

Ez az a hely, ahol a mindennapok is ünneppé válnak.

VÁRHATÓ ÁTADÁS:

Szerkezetkész: 2027. február
Kulcsrakész: 2028. december

A Duna-part új fejezete most íródik.
Itt nem csupán lakást vásárol – hanem egy életstílust, ami Buda jövőjét határozza meg.
További adatok
Telekterület: -
Kert mérete: -
Erkély mérete: 51 m2
Felszereltség: -
Parkolás: -
Kilátás: utcai
Egyéb extrák:  
Hirdető adatai
Hirdető neve: Otthon Centrum
Kapcsolattartó: Arany Bálint
Hirdető telefonszáma: +36 70 388 6116
Honlap: -
 
Üzenetet küldhet a hirdetőnek, árajánlatot tehet az ingatlanra:
Az Ön neve:
Az Ön e-mail címe:
Üzenet: