Ingatlan Televízió
Ingatlan Televízió
további hirdetések
adatlap bezárása

Debrecen 
 

Hivatkozási szám: 5926151
Ingatlan adatai
Irányár: 85 916 500 Ft
Típus: lakás (tégla)
Kategória: eladó
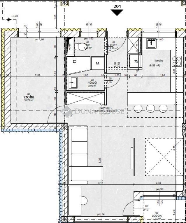
Alapterület: 55 m2
Fűtés: -
Állapota: új
Szobák száma: 2
Építés éve: 2027
Szintek száma: 1
Részletes leírás
Debrecen belvárosában egy 16 lakásos újépítésű projekt építése vette kezdetét.
Különösen jó lokációval, remek elosztású lakások kerülnek megépítésre.
Pinceszinten terempakolók, földszinten irodák, üzletek, míg az első és második emeleten 7-7 lakás, addig a 2.-ik emeleten kettő penthouse kerül kialakításra.

Műszaki tartalom:
- 30-as téglafalazat
- 15 cm hőszigetelés
- 3 rétegű nyílászárók
- elektromos redőnnyel
- Hűtés: fain-cool
- választható burkolatok...stb.
Teremgarázs vásárolható 10 Mft-ért

További kérdéseivel kapcsolatban várom hívását, érdeklődését....
További adatok
Telekterület: -
Kert mérete: -
Erkély mérete: 2 m2
Felszereltség: -
Parkolás: -
Kilátás: -
Egyéb extrák:  
Hirdető adatai
Hirdető neve: dh.hu - Debrecen, Csapó
Kapcsolattartó: Szatmári Éva
Hirdető telefonszáma: +36302447095
Honlap: -
 
Üzenetet küldhet a hirdetőnek, árajánlatot tehet az ingatlanra:
Az Ön neve:
Az Ön e-mail címe:
Üzenet: