Ingatlan Televízió
Ingatlan Televízió
további hirdetések
adatlap bezárása

Kemenesszentpéter 
 

Hivatkozási szám: 5926271
Ingatlan adatai
Irányár: 8 900 000 Ft
Típus: ház
Kategória: eladó
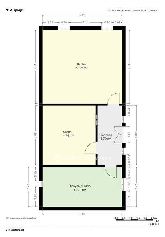
Alapterület: 63 m2
Fűtés: egyéb
Állapota: felújítást igényel
Szobák száma: 2
Építés éve: 1920
Szintek száma: 1
Részletes leírás
ELADÓ Kemenesszentpéteren, a falu KÖZPONTJÁBAN egy 63 m2-es, 2 SZOBÁS családi ház, amely az 1920-as évek körül épült VEGYES FALAZATTAL. Az ingatlan STATIKAILAG RENDBEN van, TETŐSZERKEZETE JÓ, jelenlegi állapota FELÚJÍTANDÓ, így IDEÁLIS ALAP saját igények szerinti korszerűsítéshez.

Főbb jellemzők:
- Hasznos alapterület: 63 m2, 2 szoba
- Építés: kb. 1920-as évek, vegyes falazat
- Szerkezet: stabil, jó tetőszerkezet
- Fűtés: KÁLYHÁVAL megoldott
- Közművek: VÍZ, VILLANY, CSATORNA BEKÖTVE
- GÁZ: nincs bevezetve, de a GÁZSZOLGÁLTATÁS AZ UTCÁBAN elérhető, IGÉNY SZERINT BEKÖTHETŐ

A TELEK MÉRETE 1366 m2, amely NAGY TELEKNEK számít a kategóriában. A telken KERTI CSAP, kb. 20 ÉVES AKÁCFÁK, valamint EGY ÁSOTT KÚT található, amelyek a kert öntözését és a ház körüli munkákat PRAKTIKUSAN támogathatják.

Elhelyezkedés: KÖZPONTI ELHELYEZKEDÉS a településen belül, ami mindennapi ügyintézéshez és helyi szolgáltatások eléréséhez HATÉKONY választás. A meglévő közművek, a jó szerkezeti állapot és a beköthető gáz együttese RUGALMAS FEJLESZTÉSI LEHETŐSÉGET kínál.

Összegzés: FELÚJÍTANDÓ, DE STABIL alapokon álló, KÖZMŰVESÍTETT, KÖZPONTI fekvésű, 2 szobás családi ház NAGY TELEKKEL Kemenesszentpéter szívében. Olyan érdeklődőknek ajánlható, akik TERVEZHETŐ, LÉPÉSRŐL LÉPÉSRE MEGÚJÍTHATÓ ingatlant keresnek.
Amennyiben felkeltette ez a remek ingatlan a figyelmét, vagy kérdése lenne keressen bizalommal!
Érdeklődni: Molnár Márk Telefon: 06 30 265 5725

Referencia szám: M325205-ITV
További adatok
Telekterület: 1 366 m2
Kert mérete: -
Erkély mérete: -
Felszereltség: -
Parkolás: lakáshoz van kültéri parkoló
Kilátás: -
Egyéb extrák:  
Hirdető adatai
Hirdető neve: otpip.hu - Pápa Eötvös utca 16 - OTP Ingatlanpont Iroda
Kapcsolattartó: Molnár Márk István
Hirdető telefonszáma: +36302655725
Honlap: -
 
Üzenetet küldhet a hirdetőnek, árajánlatot tehet az ingatlanra:
Az Ön neve:
Az Ön e-mail címe:
Üzenet: