Ingatlan Televízió
Ingatlan Televízió
további hirdetések
adatlap bezárása

Kecskemét 
Mindszenti körút 

Hivatkozási szám: 5926620
Ingatlan adatai
Irányár: 73 000 000 Ft
Típus: lakás (tégla)
Kategória: eladó
Alapterület: 111 m2
Fűtés: gáz (cirko)
Állapota: új
Szobák száma: 3
Építés éve: 2026
Szintek száma: 1
Részletes leírás
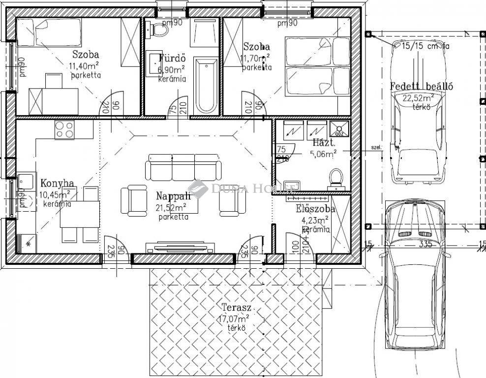
Eladó Kecskemét Kiskertek városrészben nettó 71,26 nm lakóterű, amerikai konyhás nappali + 2 szobás, 17 nm terasz, 22,52nm fedett autóbeállóval rendelkező, PRÉMIUM műszaki tartalommal megépülő ÚJ ikerház projektet 450 nm-es telken.
Műszaki tartalom:
- közművek (villany, víz, csatorna, gáz)
- kedvelt családi házas lakóövezet
- beton sávalap
- Wienerberger Porotherm 30 N+F síkra csiszolt tégla+ 15 cm EPS 80 hőszigetelés
- tégla válaszfalazat
- szeglemezes tető, födém gerendák között 30 cm vastag, fújt cellulóz, tűzgátló gipszkarton
- a műanyag nyílászárók 3 rétegű üvegezésük, Argon gáz töltettel
- 24 KW-os kondenzációs BOSCH kazán vagy vele azonos tudású kazán, padlófűtés
- a fűtés manuálisan hordozható termosztáttal szabályozható
- 3 db fűthető cseptálcás, hőszivattyús Midea 3,5 KW-os WIFI-s klíma
- Inim SmartLiving riasztórendszer
- hidegburkolatok bruttó 6.000Ft/nm
- melegburkolatok bruttó 3.500 Ft/nm
- beltéri ajtók bruttó 80.000 Ft/db választható kilinccsel együtt
- szaniterek és a csaptelepek bruttó 550.000 Ft értékig
Az ár kulcsrakész átadással értendő, konyhabútor és lámpatestek nélkül, a TELEK ÁRAT TARTALMAZZA!
További adatok
Telekterület: 450 m2
Kert mérete: -
Erkély mérete: 17 m2
Felszereltség: -
Parkolás: -
Kilátás: -
Egyéb extrák:  
Hirdető adatai
Hirdető neve: dh.hu - Kecskemét, Jókai utca
Kapcsolattartó: Koloh Viktor
Hirdető telefonszáma: +36304436022
Honlap: -
 
Üzenetet küldhet a hirdetőnek, árajánlatot tehet az ingatlanra:
Az Ön neve:
Az Ön e-mail címe:
Üzenet: