Ingatlan Televízió
Ingatlan Televízió
további hirdetések
adatlap bezárása

Orosháza 
 

Hivatkozási szám: 5927667
Ingatlan adatai
Irányár: 24 000 000 Ft
Típus: ház
Kategória: eladó
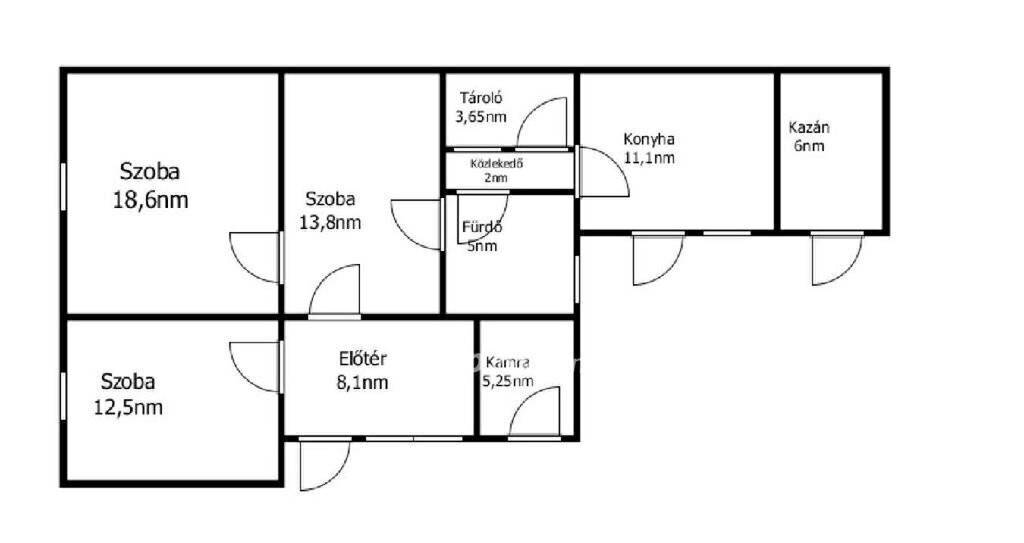
Alapterület: 86 m2
Fűtés: gáz (héra)
Állapota: felújítást igényel
Szobák száma: 3
Építés éve: 1962
Szintek száma: 1
Részletes leírás
Eladó családi ház Orosházán, hatalmas telekkel - kiváló lehetőség gazdálkodásra!

Orosházán kínálok megvételre egy 3328 nm-es telken elhelyezkedő, 86 nm hasznos alapterületű családi házat, amely ideális választás mindazok számára, akik nyugodt környezetben, nagy területen szeretnének élni vagy gazdálkodni. Az ingatlan 3 szobából, konyhából, fürdőszobából, kamrából, előszobából és külön kazánházból áll, praktikus elrendezéssel.

A ház fűtéséről gáz központi fűtés, valamint egy 45 kW-os vegyes tüzelésű kazán gondoskodik radiátoros hőleadással, így többféle megoldás is rendelkezésre áll. Az épület a korának megfelelő állapotú, felújítást igényel, így új tulajdonosa saját ízlése szerint alakíthatja ki otthonát. Az eredeti fa nyílászárók, hajópadlós burkolatok és a cseréptető a hagyományos építési stílust tükrözik.

A telek mérete kiemelkedő: a hatalmas kert kiválóan alkalmas gazdálkodásra, növénytermesztésre vagy akár állattartásra, így ideális választás önellátásra törekvőknek vagy befektetőknek is.
Amennyiben felkeltette érdeklődését, keressen bizalommal! Legyen Ön is megbízónk, és adja el rajtunk keresztül ingatlanát! Teljes körű ügyintézéssel, kedvező finanszírozási lehetőségekkel várjuk ügyfeleinket: -Otthon Start Hitelprogram -Babaváró hitel -Piaci lakáshitelek -Szabad felhasználású hitelek -Falusi Csok -Szakértő kollégáink segítenek kiválasztani az Ön számára legkedvezőbb konstrukciót. Irodáink: Szentes, Petőfi utca 12. (a buszmegálló felől) Csongrád, Fő utca 54. Válasszuk ki együtt az Önnek legmegfelelőbb ajánlatot, banki sorban állás nélkül!

Ha egy jó adottságokkal rendelkező, nagy telekkel bíró ingatlant keres, amelyben rengeteg lehetőség rejlik, ne hagyja ki ezt az ajánlatot!

Referencia szám: M325587-ITV
További adatok
Telekterület: 3 328 m2
Kert mérete: -
Erkély mérete: -
Felszereltség: -
Parkolás: lakáshoz van kültéri parkoló
Kilátás: -
Egyéb extrák:  
Hirdető adatai
Hirdető neve: otpip.hu - Szentes Petőfi utca 12 - OTP Ingatlanpont Iroda
Kapcsolattartó: Fábrik-Csendes Zsuzsanna
Hirdető telefonszáma: +36-30-656-4440
Honlap: -
 
Üzenetet küldhet a hirdetőnek, árajánlatot tehet az ingatlanra:
Az Ön neve:
Az Ön e-mail címe:
Üzenet: