Ingatlan Televízió
Ingatlan Televízió
további hirdetések
adatlap bezárása

Siófok 
 

Hivatkozási szám: 5928418
Ingatlan adatai
Irányár: 79 000 000 Ft
Típus: lakás (tégla)
Kategória: eladó
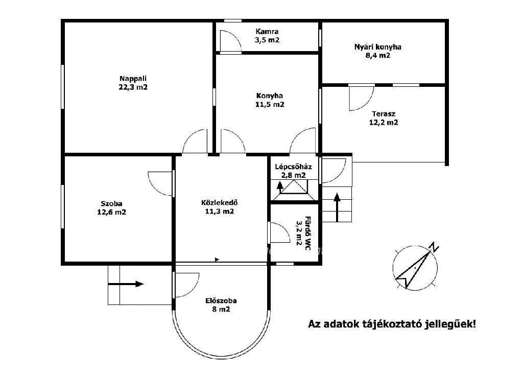
Alapterület: 75 m2
Fűtés: elektromos
Állapota: felújított
Szobák száma: 2
Építés éve: 1970
Szintek száma: 1
Részletes leírás
Balaton déli part, Siófok, 75 m2 családi ház eladó. Az ingatlan a Belvároshoz közel, forgalmas út mellett helyezkedik el. A földszintes lakóépület több elemében az elmúlt években felújításra került, nyílászárók nagy részben korszerű műanyag szerkezetek, a külső homlokzat hőszigetelést és új vakolatot kapott, a tető, tetőhéjazat megújult. A belső térben új padlóburkolatok készültek, közlekedőben elektromos padlófűtéssel. A fűtés elektromos infra panelekkel megoldott. A lakótérben hűtő fűtő klímaberendezés került kiépítésre. A jól karbantartott épület kedvező tájolású, déli-nyugati benapozású. A konyhabútor a vételár részét képezi, a többi berendezés további megegyezés tárgya lehet. A telek területe 316 m2. A lakóépület részben alápincézett, mögötte nyári konyha és fedett terasz található. Balaton-part 1500 méterre, autóval 5 perc alatt elérhető. Otthon Start Program. Bővebb információért keressen telefonon!
További adatok
Telekterület: 316 m2
Kert mérete: -
Erkély mérete: 12 m2
Felszereltség: -
Parkolás: lakáshoz van kültéri parkoló
Kilátás: -
Egyéb extrák:  
Hirdető adatai
Hirdető neve: otpip.hu - Siófok Sió utca 10 - OTP Ingatlanpont Iroda
Kapcsolattartó: Németh Andrásné
Hirdető telefonszáma: +36-30-989-6383
Honlap: -
 
Üzenetet küldhet a hirdetőnek, árajánlatot tehet az ingatlanra:
Az Ön neve:
Az Ön e-mail címe:
Üzenet: