Ingatlan Televízió
Ingatlan Televízió
további hirdetések
adatlap bezárása

Mohács 
Bakács utca 

Hivatkozási szám: 5928975
Ingatlan adatai
Irányár: 88 000 000 Ft
Típus: ház
Kategória: eladó
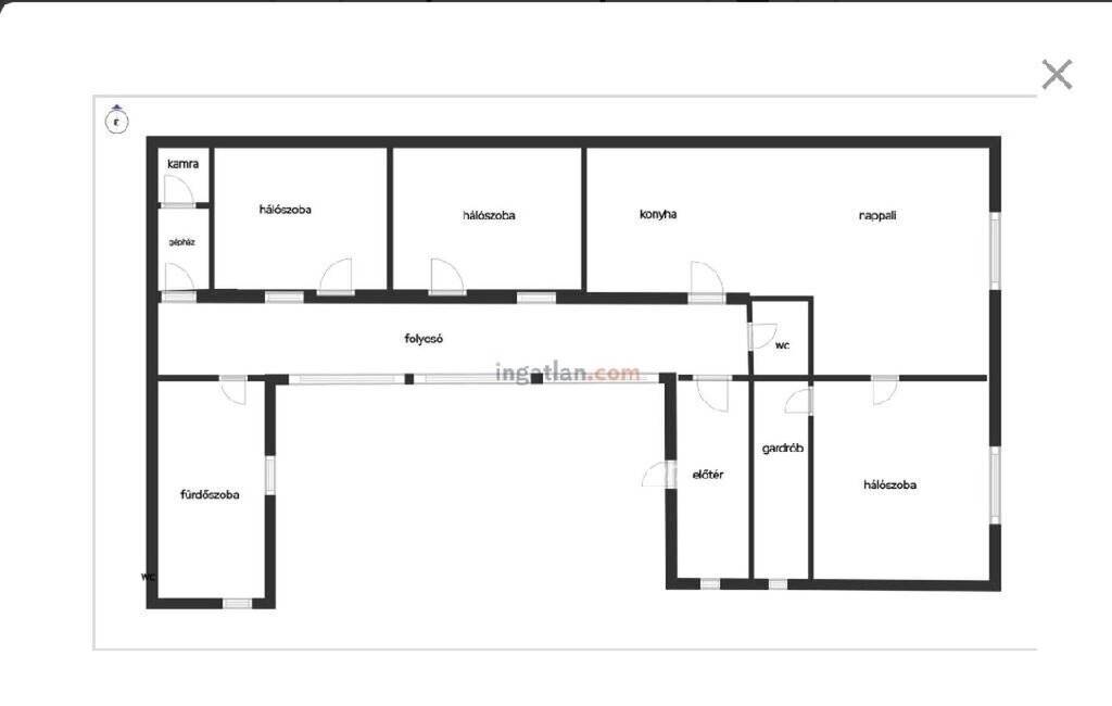
Alapterület: 116 m2
Fűtés: elektromos
Állapota: felújított
Szobák száma: 3
Építés éve: 1975
Szintek száma: 1
Részletes leírás
Teljeskörűen felújított, energiatakarékos családi ház eladó Mohács közkedvelt részén

Mohács egyik közkedvelt, családbarát részén kínálunk megvételre egy 116 m2-es, 2020-ban teljeskörűen felújított családi házat, 369 m2-es telken.

Az ingatlan kiváló választás azok számára, akik egy azonnal költözhető, korszerű, alacsony fenntartású otthont keresnek, felújítás és további ráfordítás nélkül.

A ház praktikus, jól élhető elrendezésű: 3 külön nyíló szoba, amerikai konyhás nappali, külön gardrób, mosókonyha, valamint egy tágas fürdőszoba került kialakításra, ahol kád és zuhanyzó egyaránt rendelkezésre áll.

A 2020-as teljes felújítás során az ingatlan 10 cm külső szigetelést kapott, emellett több korszerű, energiatakarékos műszaki megoldással is felszerelték. A ház rendelkezik napelemes rendszerrel, 5 db hűtő-fűtő klímával, vízteres kandallóval, valamint vízlágyító rendszerrel, amelyek jelentősen hozzájárulnak a kényelmes és gazdaságos fenntartáshoz.

A házhoz első és hátsó fedett terasz is tartozik, így a kültéri pihenés és vendégfogadás is kényelmesen megoldott. A hátsó teraszon kialakított beépített munkapult és mosogató különösen praktikussá teszi a szabadtéri főzést, grillezést és családi összejöveteleket.

A 369 m2-es kert jól használható, könnyen karbantartható, kellemes zöld környezetet biztosít, gyümölcsfákkal.

Az ingatlan elhelyezkedése kifejezetten kedvező: iskola, óvoda, játszótér néhány perc sétával elérhető, így családosok számára is ideális választás.

Egy igényesen felújított, korszerű és jól átgondolt otthon Mohács egyik kedvelt részén, amely azonnal költözhető állapotban várja új tulajdonosát.
További adatok
Telekterület: 369 m2
Kert mérete: -
Erkély mérete: -
Felszereltség: -
Parkolás: garázs
Kilátás: -
Egyéb extrák:  
Hirdető adatai
Hirdető neve: otpip.hu - Mohács Dózsa György utca 2 - OTP Ingatlanpont Iroda
Kapcsolattartó: Szenk László
Hirdető telefonszáma: +36205024543
Honlap: -
 
Üzenetet küldhet a hirdetőnek, árajánlatot tehet az ingatlanra:
Az Ön neve:
Az Ön e-mail címe:
Üzenet: