Ingatlan Televízió
Ingatlan Televízió
további hirdetések
adatlap bezárása

Bükkszék 
 

Hivatkozási szám: 5929198
Ingatlan adatai
Irányár: 35 900 000 Ft
Típus: lakás (tégla)
Kategória: eladó
Alapterület: 89 m2
Fűtés: gáz (cirko)
Állapota: felújított
Szobák száma: 2+2
Építés éve: 1986
Szintek száma: 2
Részletes leírás
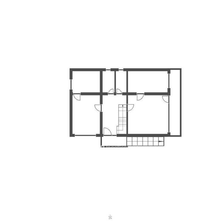
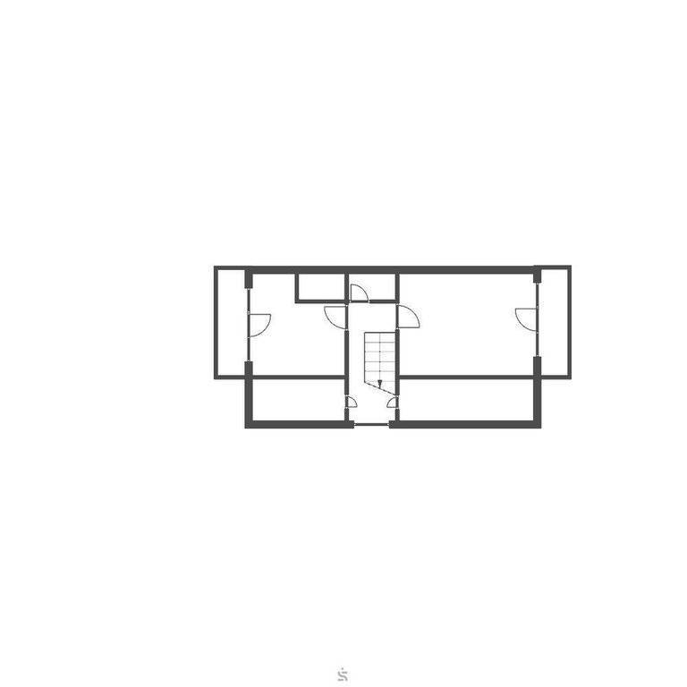
Heves vármegye, Bükkszék, közvetlenül az erdő mellett, 856 m2-es telken található, gyönyörű panorámával rendelkező, 89 m2-es, 3 szintes családi ház eladó. Az ingatlan 1986-ban épült, az alapja terméskő, a főfalak tégla szerkezetűek. A ház fűtését vegyes tüzelésű kazán és gáz-kazán biztosítja. Nyílászárói fából készültek. Az épület helyiségei a földszinten: garázs, pince-tárolók , a lakószinten: előszoba, szoba, félszoba, konyha, kamra, fürdőszoba, a tetőtérben: 2 szoba található. Az ingatlan folyamatosan karbantartott, kiváló állapotú, azonnal beköltözhető. Az ár alkuképes! Várom hívását, akár hétvégén is. Ügyfeleinknek igény esetén kedvező hitelfeltételekkel hitelt, megbízható ügyvédi közreműködést, szerződéskötéshez irodai hátteret biztosítunk.

Referencia szám: M325189
További adatok
Telekterület: 856 m2
Kert mérete: -
Erkély mérete: -
Felszereltség: -
Parkolás: lakáshoz van kültéri parkoló
Kilátás: -
Egyéb extrák:  
Hirdető adatai
Hirdető neve: otpip.hu - Eger Kertész utca 84 - OTP Ingatlanpont Iroda
Kapcsolattartó: Herger-Varga Hajnalka
Hirdető telefonszáma: +36-20-433-4804
Honlap: -
 
Üzenetet küldhet a hirdetőnek, árajánlatot tehet az ingatlanra:
Az Ön neve:
Az Ön e-mail címe:
Üzenet: