Ingatlan Televízió
Ingatlan Televízió
további hirdetések
adatlap bezárása

Jánossomorja 
 

Hivatkozási szám: 5929414
Ingatlan adatai
Irányár: 85 990 000 Ft
Típus: lakás (tégla)
Kategória: eladó
Alapterület: 87 m2
Fűtés: gáz (cirko)
Állapota: felújított
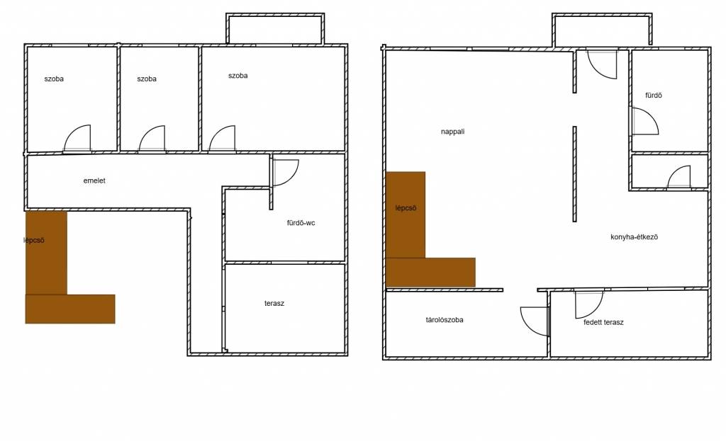
Szobák száma: 2+2
Építés éve: 1974
Szintek száma: 2
Részletes leírás
Felújított, 4 szobás családi ház eladó!

Leírás: Kiváló lehetőség az osztrák határ közelében! Jánossomorja központjához közel, csendes utcában kínáljuk eladásra ezt a bruttó 100 m2-es, kétszintes, rendkívül alacsony fenntartási költségű sorházat.

Műszaki tartalom és felújítás (2019-től): Az ingatlan esztétikai és műszaki megújuláson esett át. Kicserélték a vezetékeket (víz, villany), új burkolatokat kapott, és a falak szigetelése is megtörtént. A fűtést modern gázkazán és hűtő-fűtő klíma biztosítja, a nyílászárók pedig prémium, 7 kamrás műanyag kivitelűek redőnnyel szerelve.

Elosztás:

Földszint: Világos konyha-étkező, tárolószoba, fedett terasz, tágas nappali és fürdő-WC.

Emelet: 3 kényelmes hálószoba, galéria és egy második, zuhanyzós fürdőszoba. Két szobához saját erkély is tartozik!

Kert és extrák: A 770 m2-es telek két utcáról is megközelíthető. Az udvarban garázs és tároló található. A kert öntözése vert kútról megoldott, így a parkosított környezet fenntartása is gazdaságos.

Ideális választás ingázóknak, nagycsaládosoknak vagy az idősebb generációnak, akiknek fontos a biztonság és a minőség.

Vegye fel velem a kapcsolatot: Attila – Moving Home

Referencia szám: 3355
További adatok
Telekterület: 770 m2
Kert mérete: -
Erkély mérete: 15 m2
Felszereltség: -
Parkolás: -
Kilátás: -
Egyéb extrák:  
Hirdető adatai
Hirdető neve: movinghome.hu - Mov-Ing Home
Kapcsolattartó: Gábor Péter
Hirdető telefonszáma: +36309468094
Honlap: -
 
Üzenetet küldhet a hirdetőnek, árajánlatot tehet az ingatlanra:
Az Ön neve:
Az Ön e-mail címe:
Üzenet: