Ingatlan Televízió
Ingatlan Televízió
további hirdetések
adatlap bezárása

Zamárdi 
 

Hivatkozási szám: 5929735
Ingatlan adatai
Irányár: 88 800 000 Ft
Típus: lakás (tégla)
Kategória: eladó
Alapterület: 136 m2
Fűtés: gáz (cirko)
Állapota: felújított
Szobák száma: 4+2
Építés éve: 2005
Szintek száma: 2
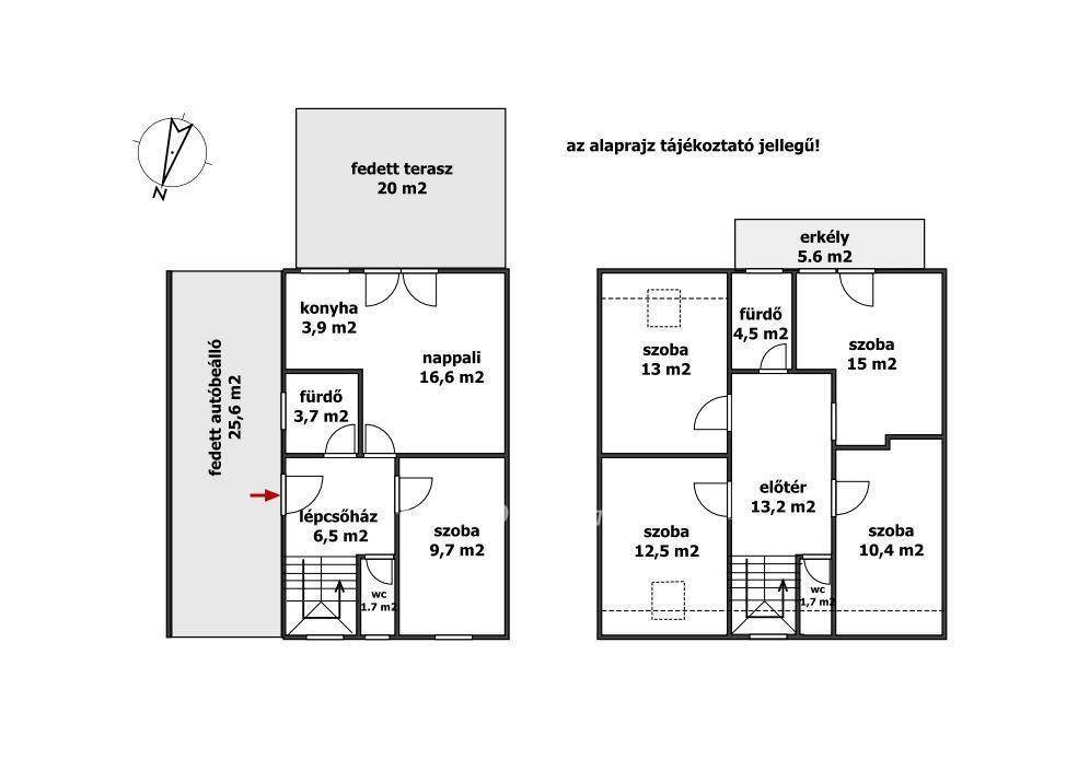
Részletes leírás
A Balaton déli partján, Zamárdiban 136 m2-es 4 hálószobás ház eladó. A város zöldövezeti részén, 444 m2-en telken fekvő kétszintes ház földszinti helyiségei: amerikai konyhás nappali, fedett terasz, háló, fürdő, WC, az emeleten 3 háló, fürdőszoba, WC és egy jelenleg tároló/gardrób szobaként funkcionáló helyiség, amiből igény esetén még egy szoba kialakítható. Az emeleten egy szoba erkélyre nyílik, a földszinten az amerikai konyhás nappali pedig terasz kapcsolatos. A szomszédos egységeket dupla 38 cm-es Porotherm tégla választja el, a két egység között légréssel, így az ingatlan teljesen szeparált. A ház 2005-ben épült, azóta többszöri felújításon esett át, kívül-belül jó állapotú. Automata kapunyitás és riasztó vezetékes előkészítése megtörtént. Fűtéséről cirkó gázkazán gondoskodik, radiátoros hőleadással, az emeleten hűtő-fűtő klíma biztosítja a kellemes hőmérsékletet. A lakótér alapterülete 109 m2, a terasz, erkély, autóbeálló 50%-kal került beszámításra. Parkolásra az épülethez csatlakozó garázsban, az első és hátsó kertrészekben nyitott beállón, és az utcán ingyenesen van lehetőség.
Családi házas, nyugodt környék. A közelben iskola, orvosi rendelő, élelmiszerbolt. A Balaton- parttól 1,5 km távolságra található az ingatlan.
M314006
Az OTP Ingatlanpont, mint egyetlen közvetlen banki hátterű ingatlanközvetítő társaság teljes körű ügyintézéssel áll az eladók és a vevők rendelkezésére! A kínálatunkból választott ingatlan finanszírozásához minősített fogyasztóbarát, piaci és kedvezményes hitel- és lízingkonstrukciókat kínálunk (lakásvásárlási hitel, CSOK plusz, szabad felhasználású hitel, babaváró hitel, céges hitelek, pályázatok, amennyiben az ügyfél és az ingatlan megfelel a feltételeknek). Az adásvételi szerződés megkötéséhez igény szerint megbízható ügyvédi közreműködést biztosítunk, és segítséget nyújtunk az adásvételhez kapcsolódó egyéb ügyek intézéséhez.
Ha az új ingatlana megvásárlásához a jelenlegi ingatlanát el kell adnia, abban is szívesen segítünk.

Referencia szám: M314006-ITV
További adatok
Telekterület: 444 m2
Kert mérete: -
Erkély mérete: 26 m2
Felszereltség: -
Parkolás: lakáshoz van kültéri parkoló
Kilátás: -
Egyéb extrák:  
Hirdető adatai
Hirdető neve: otpip.hu - Budapest XIII. kerület Lehel utca 50 - OTP Ingatlanpont Iroda
Kapcsolattartó: Takács Zsuzsanna
Hirdető telefonszáma: +36304953819
Honlap: -
 
Üzenetet küldhet a hirdetőnek, árajánlatot tehet az ingatlanra:
Az Ön neve:
Az Ön e-mail címe:
Üzenet: