Ingatlan Televízió
Ingatlan Televízió
további hirdetések
adatlap bezárása

Debrecen 
 

Hivatkozási szám: 5929932
Ingatlan adatai
Irányár: 62 387 500 Ft
Típus: lakás (tégla)
Kategória: eladó
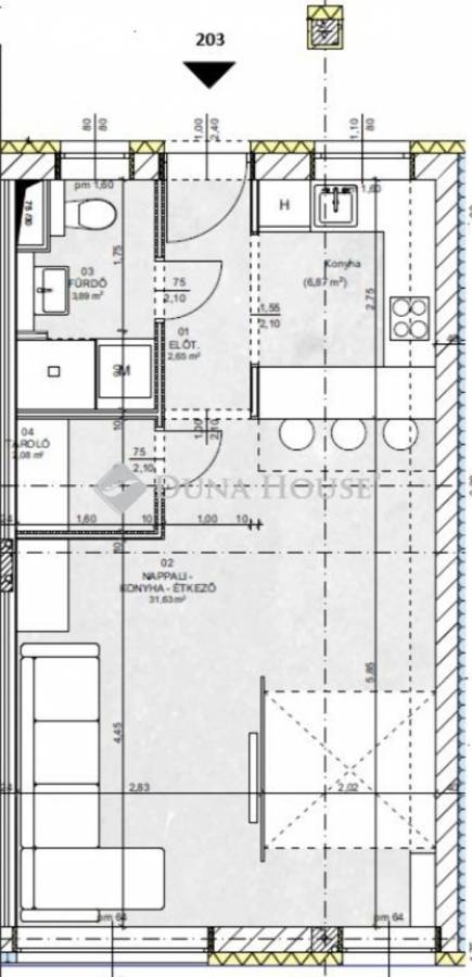
Alapterület: 40 m2
Fűtés: -
Állapota: új
Szobák száma: 1
Építés éve: 2027
Szintek száma: 1
Részletes leírás
Debrecen belvárosában egy 16 lakásos újépítésű projekt építése vette kezdetét.
Különösen jó lokációval, remek elosztású lakások kerülnek megépítésre.
Pinceszinten terempakolók, földszinten irodák, üzletek, míg az első és második emeleten 7-7 lakás, addig a 2.-ik emeleten kettő penthouse kerül kialakításra.

Műszaki tartalom:
- 30-as téglafalazat
- 15 cm hőszigetelés
- 3 rétegű nyílászárók
- elektromos redőnnyel
- Hűtés: fain-cool
- választható burkolatok...stb.
Teremgarázs vásárolható 10 Mft-ért

További kérdéseivel kapcsolatban várom hívását, érdeklődését....
Forduljon hozzám bizalommal a Duna House teljes kínálatával kapcsolatban, illetve eladási szándékával!
Szolgáltatásaink között megtalálható:
-Ingyenes hitelügyintézés a nemzetközileg elismert Credipass segítségével, garantáltan a legjobb feltételekkel és a leggyorsabb ügyintézéssel.
-Teljes körű ügyintézés ingatlan eladásához és vételéhez.
-Energetikai tanúsítvány készítése gyorsan és megbízhatóan.
-Ingyenes tanácsadás és értékbecslés, hogy a legjobb döntést hozhassa meg.
-Megbízható ügyvédi háttér biztosítása az adásvétel zökkenőmentes lebonyolításához.

Érd: Vig Viktória, e-mail: viktoria.vig@dh.hu, tel: +36/30 444 2122

Referencia szám: PR010566/LK/29011
További adatok
Telekterület: -
Kert mérete: -
Erkély mérete: -
Felszereltség: -
Parkolás: -
Kilátás: -
Egyéb extrák:  
Hirdető adatai
Hirdető neve: dh.hu - Villa Gyömrő
Kapcsolattartó: Vig Viktória
Hirdető telefonszáma: +36304442122
Honlap: -
 
Üzenetet küldhet a hirdetőnek, árajánlatot tehet az ingatlanra:
Az Ön neve:
Az Ön e-mail címe:
Üzenet: