Ingatlan Televízió
Ingatlan Televízió
további hirdetések
adatlap bezárása

Halmajugra 
 

Hivatkozási szám: 5930201
Ingatlan adatai
Irányár: 34 900 000 Ft
Típus: ház
Kategória: eladó
Alapterület: 183 m2
Fűtés: gáz (cirko)
Állapota: -
Szobák száma: 4
Építés éve: 1987
Szintek száma: -
Részletes leírás
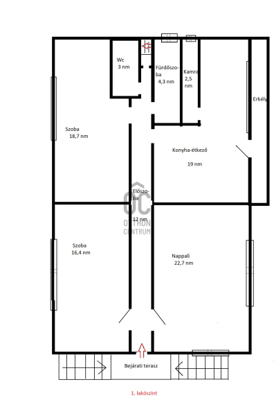
Gyöngyös mellett, Halmajugrán, csendes, jól ellátott településen kínálunk megvásárlásra egy 1324 nm-es telken álló garázsos, betonfödémes, beépíthető tetőterű önálló családi házat. A legalsó szinten a hatalmas garázs (kondiszoba), kamra, egy szoba-tároló, és a kazánház került kialakításra. Itt található a gázkazán és egy vegyestüzelésű kazán. A következő szinten kapott helyet a nappali, két nagy szoba, konyha-étkező, a kamra, a fürdőszoba és egy külön mellékhelyiség. Innen közvetlenül lejuthatunk a garázs szintre egy belső lépcsőn keresztül. A lakóépület betönfödémes, a tetőtér 102 nm, mely beépíthető, itt akár egy külön lakás is kialakítható, így két generációnak is kiválóan alkalmas. Az 5 nm-es erkélyről mátrai örök panorámánk van. A tetőt cserép fedi, 3 fázis van, és éjszakai áram is. A kertben sokféle termő gyümölcsfa van (körte, dió, naspolya, szőlő), a szomszédság rendezett. A település 6 percre van Gyöngyöstől, itt is, továbbá a közelben lévő mátrai ipari parkban is sok a munkalehetőség. Óvoda, iskola, orvosi rendelő, zenei játszótér van, jó a tömegközlekedés, tiszta, jól ellátott település. Az ingatlan üres, rövid időn belül birtokba vehető.
További adatok
Telekterület: 1 324 m2
Kert mérete: 1 324 m2
Erkély mérete: 9 m2
Felszereltség: -
Parkolás: -
Kilátás: -
Egyéb extrák:  
Hirdető adatai
Hirdető neve: Otthon Centrum
Kapcsolattartó: Sipos Zoltánné
Hirdető telefonszáma: +36 70 469 3031
Honlap: -
 
Üzenetet küldhet a hirdetőnek, árajánlatot tehet az ingatlanra:
Az Ön neve:
Az Ön e-mail címe:
Üzenet: