Ingatlan Televízió
Ingatlan Televízió
további hirdetések
adatlap bezárása

Budapest, XXII.kerület 
 

Hivatkozási szám: 5930386
Ingatlan adatai
Irányár: 83 900 000 Ft
Típus: lakás (tégla)
Kategória: eladó
Alapterület: 78 m2
Fűtés: gáz (cirko)
Állapota: -
Szobák száma: 2
Építés éve: 1950
Szintek száma: -
Részletes leírás
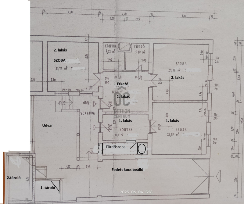
Eladásra kínálok Budafok központi részén a vasútállomás közelében egy 3 felé osztott tégla épület 78 nm-es lakását.
Az ingatlan osztatlan közös tulajdonban van, használati megosztással kerül új tulajdonosa nevére.
Az épületet két utca határolja körbe, a lakásunkhoz a bejárat a Mária Terézia utca felől közelíthető meg.
UGYANITT EGY GARZON IS ELADÓ!

Az ingatlant pár évvel ezelőtt felújították:
- műanyag nyílászárók, redőnnyel
- új fűtési rendszer Mika kazánnal
- laminált padló a szobákban
- járólap a konyhában
- réz villanyvezetékek

Az ingatlan további előnyei:
- tetőtér beépítési lehetőség!
- közös kerthasználat
- autó beállási lehetőség
- saját tároló
- saját pince rész

A lakás mellett egy 43 nm-es tágas garzon lakás is eladó.
Lehetőség van a két lakást egyben is megvásárolni. 133.800.000. Ft
Ha szeretné a családot egy helyen de mégis külön lakásban elhelyezni ennél jobb megoldást keresve sem talál ezen a környéken.
A közelben minden megtalálható amire csak szükség lehet.
A parkolás az ház előtt ingyenes.
Alaprajzon a kis lakás 1.-es lakásként a nagy lakást 2-es lakásként szerepel!
Az energetikai tanúsítvány készítése folyamatban van, amint rendelkezésre áll, úgy azzal a hirdetés frissítésre kerül.
Bővebb tájékoztatás telefonon!
Várom hívását!
További adatok
Telekterület: -
Kert mérete: -
Erkély mérete: 4 m2
Felszereltség: -
Parkolás: -
Kilátás: udvari
Egyéb extrák:  
Hirdető adatai
Hirdető neve: Otthon Centrum
Kapcsolattartó: Kiss Adrienn
Hirdető telefonszáma: +36 70 388 5181
Honlap: -
 
Üzenetet küldhet a hirdetőnek, árajánlatot tehet az ingatlanra:
Az Ön neve:
Az Ön e-mail címe:
Üzenet: