Ingatlan Televízió
Ingatlan Televízió
további hirdetések
adatlap bezárása

Mihályháza 
 

Hivatkozási szám: 5932674
Ingatlan adatai
Irányár: 47 900 000 Ft
Típus: lakás (tégla)
Kategória: eladó
Alapterület: 164 m2
Fűtés: házközponti fűtés
Állapota: felújított
Szobák száma: 3+1
Építés éve: 1989
Szintek száma: 2
Részletes leírás
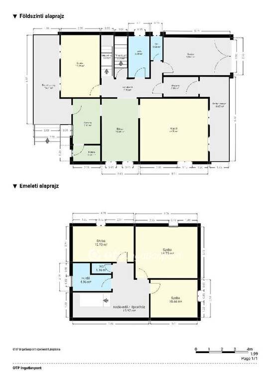
Eladó Mihályházán egy 164 m2-es, KÉTSZINTES, FELÚJÍTOTT családi ház, 1989-ben épült B30-as téglából. Az ingatlan TÁGAS terekkel, JÓ ELOSZTÁSSAL és SOKOLDALÚ használhatósággal kínál biztos alapot hosszú távra. A 1220 m2-es telek és a 120 m2-es pince további értékes lehetőségeket biztosít.

Elosztása átgondolt, PRAKTIKUS:
- Földszint: tágas nappali, 1 hálószoba, előszoba, közlekedő, külön fürdő, külön WC, konyha, kamra, pincelejáró, lépcsőház, NAGY GARÁZS, elöl és hátul is KÉT FEDETT TERASZ.
- Emelet: 2 teljes értékű szoba, 1 fél szoba, közlekedő, külön fürdő, külön WC, rakodó-tároló, lépcsőház.

Műszaki és felújítási adatok MEGBÍZHATÓ alapok:
- 2021-ben az elektromos vezetékek többsége cserélve; 60 Amper és IPARI ÁRAM rendelkezésre áll.
- 2020-ban bojlercsere; a vízhálózat 2020-ban újrahúzva (kivéve konyha).
- Fűtés: vegyes tüzelésű Totya kazán (6 tagos, vizes rostélyos, 33 kW), RADIÁTOROS hőleadással. Gáz a telken belül, igény szerint beköthető.
- A ház két oldala 5 cm szigetelést kapott. Födém szigetelése: 30 cm (2026).
- MŰANYAG, HŐSZIGETELT nyílászárók.
- 2022-ben KÖZPONTI CSATORNA bekötés.
- STATIKAILAG KIFOGÁSTALAN szerkezet, KIVÁLÓ tetőszerkezet, VIZESEDÉS NEM LÁTHATÓ.

Telek és pince:
- 1220 m2-es telek, változatos hasznosítási lehetőségekkel.
- 120 m2-es PINCE a ház alatt.

Környezet:
- Mihályházán bolt, dohánybolt, bölcsőde, óvoda, körzeti orvos elérhető.

Kinek ajánljuk:
- Akik TÁGAS, KÉTSZINTES otthont keresnek több szobával.
- Családoknak, akik értékelik a KÜLÖN FÜRDŐ és KÜLÖN WC kényelmét mindkét szinten.
- Azoknak, akiknek fontos a NAGY GARÁZS, a 120 m2-es PINCE és az IPARI ÁRAM nyújtotta lehetőségek.
- Kertkedvelőknek a 1220 m2-es telek miatt.
Amennyiben felkeltette ez a remek ingatlan a figyelmét, vagy kérdése lenne keressen bizalommal!
Érdeklődni: Molnár Márk Telefon: 06 30 265 5725

Referencia szám: M326601-ITV
További adatok
Telekterület: 1 220 m2
Kert mérete: -
Erkély mérete: -
Felszereltség: -
Parkolás: garázs
Kilátás: -
Egyéb extrák:  
Hirdető adatai
Hirdető neve: otpip.hu - Pápa Eötvös utca 16 - OTP Ingatlanpont Iroda
Kapcsolattartó: Molnár Márk István
Hirdető telefonszáma: +36302655725
Honlap: -
 
Üzenetet küldhet a hirdetőnek, árajánlatot tehet az ingatlanra:
Az Ön neve:
Az Ön e-mail címe:
Üzenet: